Verwenden Sie die Werkzeuge Draht einfügen und Mehrdrahtbus, um Drähte zwischen Steckern einzufügen.
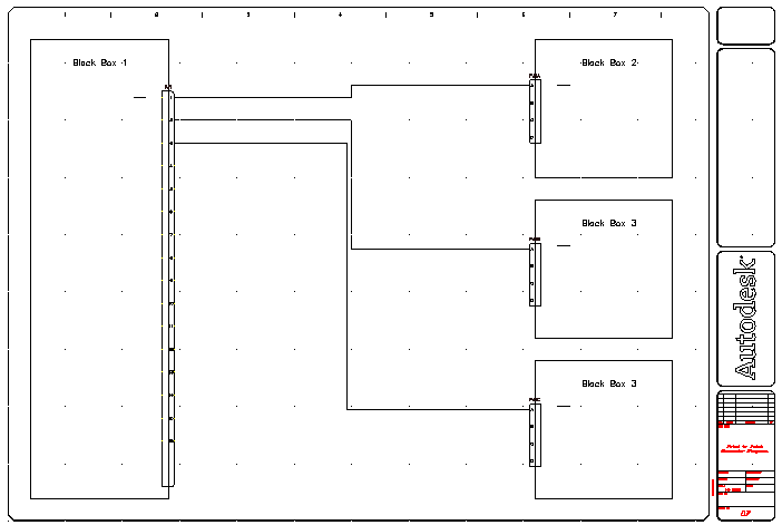
Black Box 1 ist mit einem größeren Betriebsmittel verknüpft, beispielsweise mit einem Stromkasten. Black Box 2 - Black Box 4 sind kleinere Betriebsmittel, die Teil des Stromkastens sind. Die Betriebsmittel müssen miteinander verdrahtet werden. Die einfachste Methode hierfür sind die Werkzeuge Draht einfügen und Mehrdrahtbus.
Stecker miteinander verdrahten


. Finden
Drahtstart angeben oder [Drahttyp/X=verbindungen anzeigen]:
Klicken Sie auf PJ1 bei Anschluss 1 der Black Box 1.
Drahtende angeben oder [Fortfahren]: Klicken Sie auf PJ2 bei Anschluss A der Black Box 2.

Beachten Sie, dass das Werkzeug Draht einfügen den Draht zwischen den Steckern zeichnet und dabei die auf dem Bildschirm vorhandene Geometrie umgeht.

. Finden
Horizontaler Abstand: 0.75
Vertikaler Abstand: 0.50
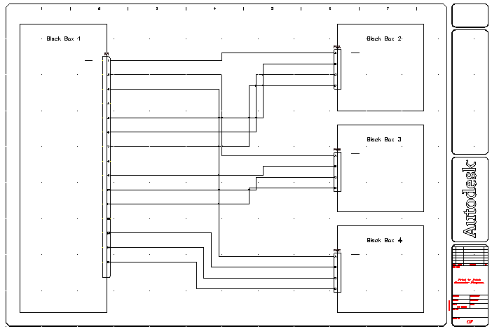
Starten bei: Betriebsmittel (mehrere Drähte)

Start-Drahtverbindungspunkte in Fenster auswählen
Wählen Sie die Anschlüsse 5-7 von Black Box 1 (1), und klicken Sie mit der rechten Maustaste.
nach (D=Drahttyp):
Ziehen Sie die Drähte nach rechts, vorbei an den drei eingefügten Drähten.
zu Punkt (Fortfahren/Umdrehen):
Ziehen Sie die Drähte bis zu PJ2 bei Black Box 2; geben Sie C ein, und drücken Sie die EINGABETASTE (zum Fortfahren und Sperren).
für (Fortfahren/Umdrehen):
Ziehen Sie die Drähte nach rechts, und verbinden Sie sie mit den Anschlüssen B-D von PJ2 (2).


. Finden
Start-Drahtverbindungspunkte in Fenster auswählen:
Wählen Sie die Anschlüsse 9-11 von Black Box 1, und klicken Sie mit der rechten Maustaste.
nach (D=Drahttyp):
Ziehen Sie die Drähte nach rechts.
zu Punkt (Fortfahren/Umdrehen):
Ziehen Sie die Drähte bis zu PJ3 bei Black Box 3; geben Sie C ein, und drücken Sie dieEINGABETASTE (zum Fortfahren und Sperren).
für (Fortfahren/Umdrehen):
Ziehen Sie die Drähte nach rechts, und verbinden Sie sie mit den Anschlüssen B-D von PJ3.

. Finden
Start-Drahtverbindungspunkte in Fenster auswählen:
Wählen Sie die Anschlüsse 13-15 von Black Box 1, und drücken Sie die EINGABETASTE.
nach (D=Drahttyp):
Ziehen Sie die Drähte nach rechts.
zu Punkt (Fortfahren/Umdrehen):
Ziehen Sie die Drähte bis zu PJ4 bei Black Box 4; geben Sie C ein, und drücken Sie die EINGABETASTE (zum Fortfahren und Sperren).
für (Fortfahren/Umdrehen):
Ziehen Sie die Drähte nach rechts, und verbinden Sie sie mit den Anschlüssen B-D von PJ4.
