Entwerfen von Layouts für Pläne mit generativem Design in Revit

Verwenden Sie Generatives Design, um das Untersuchen von Planlayouts zu automatisieren.

Dieser Artikel wurde aus diesem Dynamo-Blog-Post von John Pierson adaptiert.

Packen von Ansichten

Generatives Design kann Planern bei einigen der alltäglicheren Aufgaben in Revit helfen. Eine dieser Aufgaben ist das Layout von Plänen. Der Generative Design Primer (in englischer Sprache) ist ein Beispiel dafür, wie Sie so viele Ansichten wie möglich mithilfe einer Feedbackschleife auf einen Plan packen können. Viele Revit-Benutzer sind jedoch mit den Ansichtstypen vertraut, die sie auf ihrem Plan haben möchten, und benötigen eine nützlichere Methode zum Untersuchen von Planlayouts.

In diesem Haben Sie dies schon versucht-Artikel zeigen wir Ihnen, wie Sie mit der Funktion Generatives Design Pläne so anordnen, dass der Planer wirklich unterstützt wird.

Video

Dieses Video bietet einen Überblick über das Erstellen von Planlayouts mit der Funktion Generatives Design. Im Video wurde der Beispielstudientyp bereits eingerichtet. Blättern Sie nach unten, um schrittweise Anweisungen anzuzeigen.

Video mit freundlicher Genehmigung von John Pierson

Einrichten des Plans

In diesem Beispiel wird das Beispielmodell rac_advanced_sample_project.rvt verwendet. Das Beispielprojekt ist in Revit verfügbar, oder Sie können es hier herunterladen.

Laden Sie den Studientyp (Dynamo-Diagramm) für dieses Beispiel hier herunter: Packing Viewports.

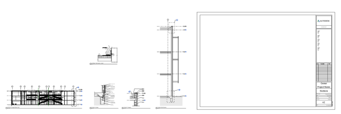
  1. Öffnen Sie das Beispielmodell rac_advanced_sample_project.rvt, und wechseln Sie zu Plan A2 – Sections.
  2. Ziehen Sie die zu platzierenden Ansichten auf die Seite, und legen Sie sie dort ab. Dadurch kann Generatives Design die Platzierung vornehmen.

Sheet A2 in the sample model, with views moved to the side

Einrichten des Studientyps

Als Nächstes erstellen Sie die Studie für Generatives Design mit dem Studientyp Packing Viewports. Zunächst stellen wir den Studientyp im Dialogfeld Studie erstellen zur Verfügung.

Wechseln Sie zu Verwalten Gruppe Generatives Design Studie erstellen.

Anmerkung: Alternativ können Sie auf das Dialogfeld Studie erstellen zugreifen, indem Sie im oberen Menü zu Verwalten Dynamo Generatives Design Studie erstellen navigieren.

An diesem Punkt sehen Sie möglicherweise packedViews als Studientyp im Dialogfeld Studie erstellen, wenn Sie den Ordner Packing Viewports (mit der DYN-Datei und dem Ordner Abhängigkeiten) an derselben Stelle wie die anderen Studientypen gespeichert haben.

Wenn der Studientyp nicht angezeigt wird, führen Sie die folgenden Schritte aus:

  1. Wählen Sie Add folder icon Ordner hinzufügen neben dem Dropdown-Menü Ordner wählen.
  2. Klicken Sie auf das Pluszeichen (+), und navigieren Sie zum Pfad, in dem sich der Ordner mit dem Packing Viewports-Diagramm befindet. Der Ordner sollte sowohl die DYN-Datei als auch den Ordner Abhängigkeiten enthalten.
  3. Nachdem der Ordnerpfad hinzugefügt wurde, können Sie das Dialogfeld Ordner verwalten schließen.

Definieren der Studie

Der Studientyp Packed Views sollte nun verfügbar sein, um eine Studie zu erstellen.

  1. Wählen Sie im Dialogfeld Studie erstellen in der Dropdown-Liste Ordner wählen oder in der Liste der Studientypen die Option packedViews aus.
  2. Ändern Sie in der Dropdown-Liste Methode die Methode in Zufällig.
  3. Klicken Sie auf das Menü Studienoptionen Study options icon in der oberen rechten Ecke des Dialogfelds, und wählen Sie Vorgabeeinstellungen speichern.
  4. Klicken Sie auf Erstellen. Es kann einen Moment dauern, bis Generatives Design Ergebnisse erstellt hat.

Überprüfen von Ergebnissen

Im Dialogfeld Ergebnisse untersuchen werden mehrere Ergebnisse angezeigt. Wählen Sie ein Ergebnis aus, um ein größeres Bild anzuzeigen, das Sie drehen und vergrößern bzw. verkleinern können, um mehr Details anzuzeigen. Die Namen der Ansichtsfenster werden in die Vorschau eingeschlossen, um das Layout der einzelnen Optionen zu verdeutlichen.

Im Beispielplan sind insgesamt 5 Ansichten verfügbar. Sie können Filter im Diagramm mit den parallelen Koordinaten unten in der Mitte des Dialogfelds Ergebnisse untersuchen verwenden, um auszuwählen, wie viele Ansichten auf dem Plan angezeigt werden sollen. Klicken Sie, und ziehen Sie den Mauszeiger entlang der Achsen (vertikale Linien) im Diagramm, um Filter zu verwenden.

Anzeigen eines Ergebnisses in Revit:

  1. Wählen Sie ein Ergebnis aus, das Ihnen zusagt, und klicken Sie dann auf Revit-Elemente erstellen. Dadurch wird das ausgewählte Planlayout in Revit erstellt.
  2. Minimieren Sie das Dialogfeld Ergebnisse untersuchen, oder verschieben Sie es an die Seite, sodass Sie das Revit-Modell sehen können.
  3. Um eine andere Option auszuprobieren, wählen Sie Rückgängig (STRG+Z), und das Layout wird zurückgesetzt.
  4. Wählen Sie im Dialogfeld Ergebnisse untersuchen eine andere Option aus, und klicken Sie erneut auf Revit-Elemente erstellen. Das Planlayout wird entsprechend aktualisiert.

Sheet layout option in the Explore Outcomes dialog and the same option generated in Revit

Hinzufügen von weiteren Ansichten

Wenn Sie dem Plan weitere Ansichten hinzufügen möchten, erstellen Sie eine neue Studie. Nachdem Sie den Studientyp und die Einstellungen bereits definiert haben, ist dies ein schneller und einfacher Vorgang.

  1. Fügen Sie dem Plan die gewünschten Ansichten hinzu.
  2. Erstellen Sie eine neue Studie. Sie können eine Studie direkt über das Dialogfeld Ergebnisse untersuchen erstellen, indem Sie Studie erstellen in der unteren linken Ecke auswählen.
  3. Wählen Sie den Studientyp packedViews aus. Die Einstellungen werden vorgabemäßig auf die Einstellungen zurückgesetzt, die Sie zuvor gespeichert haben, aber Sie können sie bei Bedarf ändern, zum Beispiel, indem Sie ein anderes Blatt auswählen.
  4. Klicken Sie auf Erstellen.

Überprüfen Sie die verschiedenen Layout-Optionen, und experimentieren Sie mit ihnen wie im vorherigen Abschnitt. Wenn Sie mehr Ansichten haben, als problemlos auf den Plan passen, können Sie mithilfe des Filters die Anzahl der zu platzierenden Ansichten angeben. Alle Ansichten, die diese Begrenzung überschreiten, werden neben dem Plan platziert.

Mit der Funktion Generatives Design müssen Sie nicht mehr langwierig Planlayouts untersuchen. Versuchen Sie es, und teilen Sie uns Ihre Meinung mit, indem Sie diesen Artikel weiter unten bewerten und Ihr Feedback in das Kommentarfeld eingeben.