Take a temporary look at the dimension and alignment constraints in a view, to troubleshoot or modify elements in the model.
-
On the View Control Bar, click
(Reveal Constraints).
The Reveal Constraints drawing area displays a color border to indicate that you are in Reveal Constraints mode. All constraints display in color, and model elements display in half-tone (gray).
Note: To make it easier to see the constraints in this mode, make sure that the Thin Lines display option is not selected (View tab

Graphics panel


Thin Lines).
-
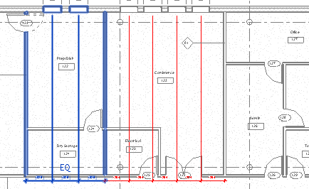
Select a constraint to highlight the elements that are constrained.
In the following example, the constraint on the left is selected, and the 2 walls and 2 windows that are constrained are also highlighted.
-
Optional: Remove the constraint by simply deleting it, or by unlocking it.
Note: Constraints that were added in sketch mode for an element display in half-tone color. Double-click the element to enter sketch mode to modify or remove the constraint.
- On the View Control Bar, click
to exit Reveal Constraints mode.