Utilice las herramientas Insertar cable y Bus múltiple para añadir cables entre conectores.
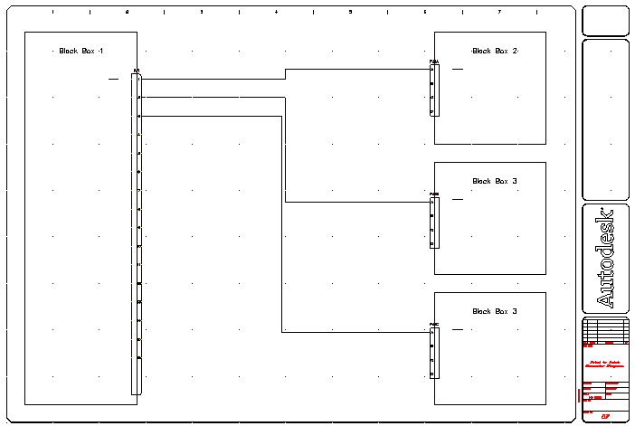
La Caja negra 1 está asociada a un componente de mayor tamaño como una caja eléctrica. Las Cajas negras 2 a 4 son componentes más pequeños que forman parte de la caja eléctrica. Los componentes deben unirse mediante cables. El método más sencillo consiste en utilizar las herramientas Insertar cable y Bus de cables múltiples.
Unión de los conectores mediante cables


. Buscar
Precise inicio de cable o [Tipo de cable/X=mostrar conexiones]:
Haga clic en PJ1 en el polo 1 de la caja negra 1
Precise extremo de cable o [Continuar]: Haga clic en PJ2 en el polo A de la caja negra 2

Observe que la herramienta Insertar cable ha dibujado el cable entre los conectores, evitando la geometría existente en la pantalla.

. Buscar
Espaciado horizontal: 0.75
Espaciado vertical: 0.50
Empezando en: Componente (varios cables)

Seleccione mediante ventana puntos iniciales de conexión de cables
Seleccione los polos de 5 a 7 de la Caja negra 1 (1) y haga clic con el botón derecho
a (T= tipo de cable):
Arrastre los cables hacia la derecha, más allá de los cables que ha insertado,
a Punto (Continuar/cambiar):
Arrastre los cables hacia PJ2, de la Caja negra 2, introduzca C y pulse INTRO (para continuar y bloquear el arrastre)
a (Continuar/cambiar):
Arrastre los cables hacia la derecha y conéctelos a los polos B-D en PJ2 (2)


. Buscar
Seleccione mediante ventana puntos iniciales de conexión de cables:
Seleccione los polos de 9 a 11 de la Caja negra 1 y haga clic con el botón derecho
a (T= tipo de cable):
Arrastre los cables hacia la derecha,
a Punto (Continuar/cambiar):
Arrastre los cables hacia PJ3, de la Caja negra 3, introduzcaC y pulse INTRO (para continuar y bloquear el arrastre).
a (Continuar/cambiar):
Arrastre los cables hacia la derecha y conéctelos a los polos B-D en PJ3

. Buscar
Seleccione mediante ventana puntos iniciales de conexión de cables:
Seleccione los polos de 13 a 15 de la Caja negra 1 y pulseINTRO
a (T= tipo de cable):
Arrastre los cables hacia la derecha,
a Punto (Continuar/cambiar):
Arrastre los cables hacia abajo y hacia PJ4 de la Caja negra 4, pulseC y pulseINTRO(para continuar y bloquear el arrastre)
a (Continuar/cambiar):
Arrastre los cables hacia la derecha y conéctelos a los polos B-D en PJ4
