En este ejercicio, trabajará con diferentes niveles para añadir muros exteriores e interiores, y un corredor al proyecto.
|
Categoría
|
Usuarios nuevos
|
|
Tiempo necesario
|
15 minutos
|
|
Archivos de aprendizaje utilizados
|
GSG_02_Create_Walls.rvt
|
|
Antes de comenzar, descargue el archivo de datos GSG_02_Create_Walls.rvt. Descargue este archivo zip (si aún no ha descargado los archivos de ejercicios de los aprendizajes).
Objetivos
- Dibujar muros exteriores mediante los puntos seleccionados para añadirlos.
- Añadir muros interiores al nivel inferior mediante la herramienta Muro.
- Utilizar la herramienta Recortar/Extender para crear huecos en un corredor.
Ver el vídeo
Modificación de muros exteriores
- Al trabajar en la vista 3D, seleccione los muros en las esquinas del edificio. Utilice una selección de ventana contenedora y mantenga pulsada la tecla Ctrl para añadir muros a la selección.
- En la sección Restricción de base de la paleta Propiedades, seleccione 04 - Parapeto superior y haga clic en Aplicar.
- Pulse Esc para anular la selección de los muros.
- Seleccione los dos muros ubicados en la esquina frontal derecha del edificio. En la paleta Propiedades, defina el Desfase de base en 4250 mm.
- En el selector de tipo, cambie el tipo de muro a Exterior - Enlucido en ladrillo en bloque en la entrada.
Adición de muros interiores
- En el parámetro Planos de planta del Navegador de proyectos, haga doble clic en 01- Planta de tienda.
- Haga clic en la ficha Arquitectura
grupo Construir
(Muro).
- En el selector de tipo, elija Interior - Partición de 138 mm (1- h).
- En la barra de opciones:
- En Altura, seleccione 03 - Parapeto inferior.
- Para Línea de ubicación, seleccione Eje del muro.
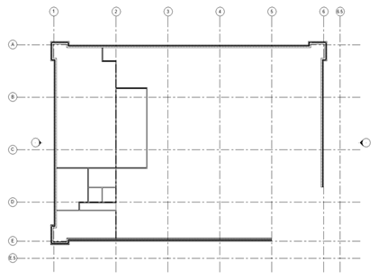
- Utilice la siguiente imagen como guía para colocar muros interiores para crear habitaciones:
- La colocación no tiene por qué ser exacta.
- Al diseñar muros, puede resultar útil activar o desactivar la opción Cadena. Esta opción permite colocar varios muros de extremo a extremo. Con la opción Cadena desactivada, deben especificarse los dos puntos finales de cada muro. Experimente con ambas configuraciones.
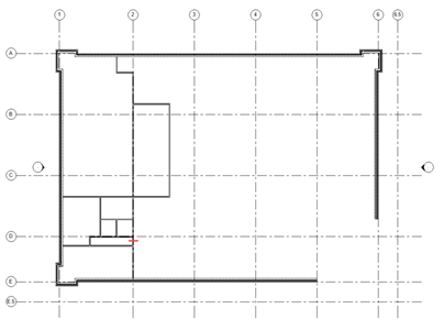
- Modifique muros para crear un corredor:
- Haga clic en
(Modificar) para completar el comando.
Parte 3: creación de un terreno y de una plataforma de construcción