En este ejercicio, completará el interior del modelo mediante la adición de una escalera al entresuelo en el nivel inferior y la modificación posterior de la barandilla en el entresuelo.
|
Categoría
|
Usuarios nuevos
|
|
Tiempo necesario
|
15 minutos
|
|
Archivos de aprendizaje utilizados
|
GSG_09_stairs_railings.rvt
|
|
Antes de comenzar, descargue el archivo GSG_09_stairs_railings.rvt. Descargue este archivo zip (si aún no ha descargado los archivos de ejercicios de los aprendizajes).
Objetivos
- Crear una escalera entre la planta de la tienda y el entresuelo.
- Modificar la barandilla de escalera para incluir el entresuelo.
- Cambiar el tipo de barandilla a una barandilla de tubería.
Ver el vídeo
Creación de escaleras
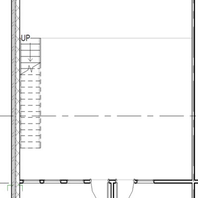
- Abra el proyecto GSG_09_stairs_railings.rvt.
- Compruebe que el plano de planta 01 - Planta de tienda esté abierto.
- Haga clic en la ficha Arquitectura
grupo Circulación
(Escalera)
- En la paleta Propiedades, dentro de Restricciones:
- En Nivel base, seleccione 01 - Planta de tienda.
- En Nivel superior, seleccione Entresuelo.
- En la barra de opciones, establezca la Línea de ubicación en Tramo: izquierda.
- En el espacio de la tienda, haga clic en la esquina del subyacente del entresuelo para iniciar el tramo de escalera.
- Mueva el cursor hacia abajo hasta que la información interna indique que quedan 0 contrahuellas y haga clic para especificar el punto final de la escalera.
- En el grupo Modo, haga clic en
(Finalizar modo de edición).
Modificación del tipo de barandilla
- En la barra de herramientas de acceso rápido, haga clic en
(Vista 3D por defecto).
- Seleccione la cubierta plana y, a continuación, utilice
(Aislar/Ocultar temporalmente) en la barra de controles de vista y seleccione Ocultar elemento.
- Seleccione la barandilla en el lado de la escalera situado cerca del muro.
- En el selector de tipo, elija Muro de tubería de 900 mm.
- Haga clic en Suprimir tipo en el cuadro de diálogo de aviso.
- Seleccione la barandilla en el otro lado de la escalera.
- En el selector de tipo, elija Tubería de 900 mm.
Parte 10: creación de vistas