Exercice LiveView : fusion de vecteurs

Dans cet exercice, vous allez mettre à jour un dessin et fusionner des données vectorielles nouvelles avec des données raster existantes.

Remarque : Les exemples de fichiers du guide de mise en route peuvent être téléchargés à partir de l'adresse https://www.autodesk.com/raster_design_getting_started_guide. Téléchargez et extrayez les fichiers d'exemple sur votre poste de travail pour les utiliser dans cet exercice.
Pour fusionner des vecteurs dans des données raster
1

Ouvrez le fichier d'exemple LiveView_Merge.dwg.

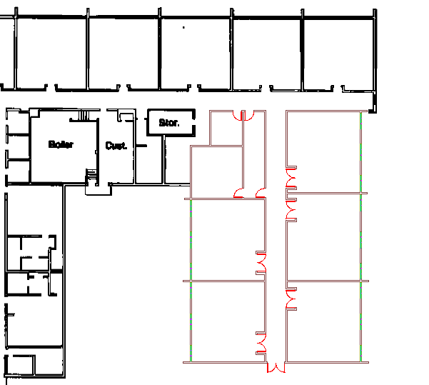
Le dessin d'une école s'affiche. Les données raster de couleur blanche correspondent à l'édifice d'origine, tandis que les données vectorielles colorées correspondent aux salles de classe qui ont été ajoutées.

2 Cliquez sur le menu Raster FusionnerConfigurer les plumes raster pour ouvrir la boîte de dialogue Paramètres de plume raster.
3

Sélectionnez la couleur de plume rouge, réglez l'épaisseur sur 1 pixel, puis cliquez sur OK.

Avec ce réglage, les portes sont tracées à l'aide de lignes raster plus fines que celles des murs.

4

Cliquez sur le menu Raster FusionnerVecteur avec raster. Dessinez une fenêtre autour du bloc vectoriel des nouvelles salles de classe pour le sélectionner, puis cliquez à l'aide du bouton droit de la souris pour mettre fin à la sélection. Appuyez sur la touche ENTREE pour accepter le paramètre par défaut, qui consiste à supprimer les vecteurs après la fusion.

Les données vectorielles sont fusionnées avec les données raster.