Exercice LiveView : suppression des taches d'une image

Dans cet exercice, vous allez nettoyer un dessin en y supprimant les taches.

Remarque : Les exemples de fichiers du guide de mise en route peuvent être téléchargés à partir de l'adresse https://www.autodesk.com/raster_design_getting_started_guide. Téléchargez et extrayez les fichiers d'exemple sur votre poste de travail pour les utiliser dans cet exercice.
Pour supprimer les taches d'une image
1

Ouvrez le fichier d'exemple LiveView_Clean.dwg.

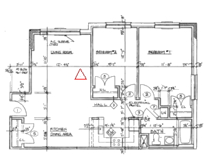
Ce dessin affiche un triangle vectoriel rouge autour de l'une des taches les plus grandes dans l'image.

2 Effectuez un zoom avant pour voir clairement la tache à l'intérieur du triangle rouge.
3 Cliquez sur le menu RasterNettoyerSupprimer les taches.

Appuyez sur la touche ENTREE pour traiter l'ensemble de l'image.

4 Cliquez sur la tache à l'intérieur du triangle rouge.

Le système indique la taille de la tache en unités de dessin (0.025) ou en pixels (5) et met en surbrillance toutes les taches dont la taille est égale ou inférieure à la taille indiquée, qui sont donc susceptibles d'être supprimées.

5 Effectuez un panoramique et un zoom avant autour de l'image pour passer les taches en revue. Cliquez afin de désélectionner les taches que vous ne souhaitez pas supprimer, par exemple le point dans le texte A.C. SLEEVE, dans l'angle supérieur gauche.

Appuyez sur la touche ENTREE pour supprimer les taches en surbrillance.

6 Dans l'angle supérieur gauche, plusieurs taches n'ont pas été supprimées, car elles sont plus grandes que la tache que vous avez sélectionnée dans le triangle rouge. Vous pouvez supprimer ces taches manuellement.