Pour les calculs des poutres-voiles suivant la norme BA polonaise, outre l'armature typique horizontale et verticale, il est possible de générer les zones d'armatures additionnelles dans les endroits des appuis et dans les régions de l’application des charges concentrées (sur la surface de répartition définie ou dans un point). Cette approche permet de transférer en sécurité les contraintes soumises aux concentrations importantes dans les zones mentionnées. Pour calculer cette valeur, vous devez exécuter les étapes suivantes.
Les dimensions des zones d’appui dépendent de la géométrie et du type d’appui de la poutre-voile.
Poutre-voile appuyée sur des poteaux, à une travée

Les valeurs entre parenthèses sont données pour h ≥ 2l.
Poutre-voile appuyée sur des poteaux, à plusieurs travées, pour h ≥ l/2

Les valeurs entre parenthèses sont données pour h ≥ l.
Poutre-voile appuyée sur des poteaux, à plusieurs travées, pour h ≥ l/2

En cas de poutres-voiles appuyées sur des pilastres, on applique les règles d’appui comme pour les poteaux.
Poutre-voile encastrée (les mêmes dimensions de zone d'armature horizontale et verticale)

La valeur entre parenthèse pour h ≥ ln, ln étant un distance claire entre les appuis.
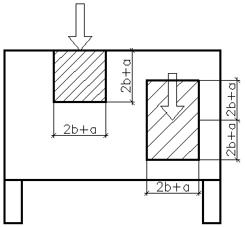
Les dimensions de la zone d'armature dans la zone de l’application de la force concentrée sont déterminées suivant le schéma ci-dessous.

Désignations dans la figure :
a - largeur de la répartition de la charge (définie ensemble avec la valeur de la force)
b - épaisseur de la poutre-voile.
La dimension d’une telle zone doit aussi être supérieure à 1 mètre.