Révélez temporairement les contraintes de cotes et d'alignement dans une vue afin de résoudre les problèmes ou de modifier des éléments dans le modèle.
- Dans la barre de contrôle Vue, cliquez sur
(Afficher les contraintes).
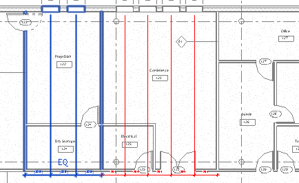
La zone de dessin Afficher les contraintes affiche une bordure colorée pour indiquer que vous êtes en mode Afficher les contraintes. Toutes les contraintes s'affichent en couleur, et les éléments du modèle s'affichent en demi-teinte (gris).
Remarque : Pour voir plus facilement les contraintes dans ce mode, assurez-vous que l'option Lignes fines n'est pas sélectionnée (onglet Vue

groupe de fonctions Graphismes


Lignes fines).
- Sélectionnez une contrainte pour mettre en surbrillance les éléments qui sont contraints.
Dans l'exemple suivant, la contrainte de gauche est sélectionnée, et les deux murs et les deux fenêtres contraints sont également mis en surbrillance.
- Facultatif : pour supprimer la contrainte, il vous suffit de la supprimer ou de la déverrouiller.
Remarque : Les contraintes qui ont été ajoutées en mode d'esquisse pour un élément s'affichent en demi-teinte. Cliquez deux fois sur l'élément pour activer le mode d'esquisse afin de modifier ou supprimer la contrainte.
- Dans la barre de contrôle Vue, cliquez sur
pour quitter le mode Afficher les contraintes.