Poiché spesso si esegue lo zoom e la panoramica quando si lavora sui disegni, è importante essere più efficienti possibile con queste operazioni. Esistono alcune straordinarie tecniche utilizzabili per controllare cosa viene visualizzato.
Sebbene sia stata già acquisita familiarità con l'utilizzo della rotellina del mouse per eseguire lo zoom e la panoramica, il feedback che abbiamo ricevuto indica che potrebbero essere utili alcuni suggerimenti. Primo, di seguito sono riportati due suggerimenti di base:

Ecco come si può ridurre la necessità di eseguire la panoramica combinando quest'ultima e lo zoom.

Questa tecnica consente di spostare l'area di interesse verso il centro del disegno quando si esegue lo zoom in avvicinamento.
Abbiamo anche ricevuto molte richieste per poter rallentare la velocità con cui è possibile eseguire lo zoom in avvicinamento o in allontanamento di un'area utilizzando la rotellina del mouse.
Il risultato consente modifiche più uniformi e più dettagliate utilizzando la rotellina del mouse.
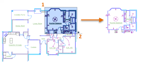
Alcuni disegni sono grandi e complessi abbastanza da essere confusi a livello visivo. Questo può rallentare le prestazioni e causare errori durante le operazioni di panoramica e zoom. In genere, è possibile disattivare o congelare eventuali layer che attualmente non sono necessari. Sapevate che è possibile nascondere temporaneamente aree del disegno con la funzionalità Isola oggetti?

L'operazione Isola oggetti nasconde tutto ad eccezione degli oggetti selezionati.


Attualmente è possibile passare tra le viste precedenti e quelle successive dalla scheda Vista, gruppo Navigazione. Tuttavia, questo gruppo è nascosto per default. Per visualizzare il gruppo Navigazione, effettuare le seguenti operazioni:

Come si può osservare, questi pulsanti sono particolarmente utili se ci si trova a passare ripetutamente tra due o tre viste.
Non sarebbe fantastico poter andare avanti e indietro tra le varie viste dalla barra degli strumenti Accesso rapido?

Il bello è che facile da impostare.



Ad esempio, le proprietà di Vista precedente dovrebbero avere un aspetto simile al seguente:

Queste due macro disattivano i pulsanti Vista precedente e Vista successiva quando si raggiunge l'inizio o la fine della viste precedenti.
L'aggiunta di questi due pulsanti consente di migliorare l’efficienza, soprattutto quando è necessario eseguire ripetutamente lo zoom in avanti e indietro di un'area.
È possibile controllare il funzionamento delle operazioni di zoom e panoramica impostando le variabili di sistema o creando pulsanti personalizzati. Di seguito sono riportati i comandi e le variabili di sistema utilizzati più di frequente e correlati a zoom e panoramica.
| Comando | Descrizione |
|---|---|
| PAN | Sposta la vista senza modificare la direzione di visualizzazione o l'ingrandimento. |
| OPZIONITV | Visualizza una modifica alla vista sotto forma di transizione omogenea. |
| ZOOM | Aumenta o riduce il fattore di ingrandimento della vista nella finestra corrente. |
| Variabile di sistema | Descrizione | Valore di default | Salvato in |
|---|---|---|---|
| MBUTTONPAN | Controlla il funzionamento del terzo pulsante o della rotellina del dispositivo di puntamento. | 1 | Registro |
| VTDURATION | Imposta la durata di una transizione omogenea della vista, espressa in millisecondi. | 750 | Registro |
| VTENABLE | Controlla quando vengono utilizzate transizioni omogenee della vista. | 3 | Registro |
| VTFPS | Imposta la velocità minima di una transizione omogenea della vista, espressa in frame al secondo. | 7 | Registro |
| ZOOMFACTOR | Controlla il variare del livello di ingrandimento quando la rotellina del mouse si sposta in avanti o all'indietro. | 60 | Registro |
| ZOOMWHEEL | Attiva e disattiva la direzione delle operazioni di zoom trasparenti quando si scorre la rotellina centrale del mouse. | 0 | Registro |
Utilizzare la Guida in linea di AutoCAD per ulteriori informazioni su questi comandi e sui valori supportati per le variabili di sistema elencate. È possibile effettuare prove con le impostazioni delle variabili di sistema per trovare la soluzione più adatta alle proprie esigenze.