Esercizio B1: copia di entità raster tramite oggetti regione

Questo esercizio mostra come esaminare impostazioni REM, definire oggetti regione REM e copiare entità raster da un'immagine all'altra.

È possibile definire un oggetto regione in immagini bitonali, in scala di grigi e a colori.

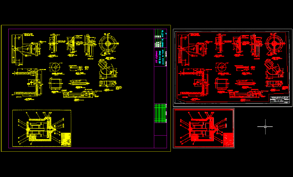
In questo esercizio si utilizzerà un disegno contenente due immagini bitonali digitalizzate da disegni meccanici:

I comandi REM vengono utilizzati per selezionare le entità nell'immagine e per copiarle in un'immagine vuota già presente nel disegno. Negli esercizi successivi queste entità verranno modificate utilizzando i comandi REM.

Esercizi correlati

Prima di svolgere questo esercizio, accertarsi che le opzioni del Set di strumenti AutoCAD Raster Design siano impostate come descritto in Esercizio A1: impostazione delle opzioni del Set di strumenti AutoCAD Raster Design.

Esercizio

  1. Nella cartella ..\Programmi\Autodesk\ApplicationPlugins\RasterDesign2022.Bundle\Contents\Tutorials\Tutorial3, aprire il disegno REM_02.dwg.

    Esaminare le impostazioni REM

  2. Per visualizzare la finestra di dialogo Opzioni di Raster Design, fare clic su RasterOpzioni.
  3. Fare clic sulla scheda REM e assicurarsi che il colore degli oggetti REM sia rosso.
  4. Fare clic sulla scheda Rilevamento entità raster e verificare che siano selezionate le seguenti impostazioni:
    • Massima estensione 10.
    • Opzione Utilizza gravità selezione raster selezionata.
    • Seleziona apertura 4.
    • Tolleranza mobile 2.
  5. Fare clic su OK.
  6. Fare clic con il pulsante destro del mouse sulla barra degli strumenti di AutoCAD o su qualsiasi altra barra degli strumenti del Set di strumenti AutoCAD Raster Design e scegliere Barra degli strumenti manipolazione entità raster per visualizzare questa barra.
  7. Per visualizzare l'area strumenti Gestione immagini, fare clic su RasterGestione. Scegliere la vista Inserimenti immagine.
  8. Fare clic sul simbolo + vicino a REM_02.dwg, fare clic con il pulsante destro del mouse su Mech_02a e scegliere Zoom su per visualizzare l'immagine contenente 13 disegni dettagliati.

    Creare un oggetto regione poligonale

  9. Sulla barra degli strumenti REM, fare clic su Regione poligonale .
  10. Disegnare un poligono che racchiuda tutti i disegni, le loro annotazioni e parte del cartiglio posto nell'angolo inferiore destro, quindi premere Invio per completare la procedura.

    Il poligono e tutte le entità che contiene sono ora visualizzati in rosso, ad indicare che sono stati catturati come parte dell'oggetto regione REM.

    Perfezionare l'oggetto regione

  11. Fare clic sul contorno del poligono per selezionare l'oggetto regione REM.
  12. Fare clic con il pulsante destro del mouse e scegliere Modalità perfezionamento. Viene evidenziato solo il contorno della regione.
  13. Eseguire in modo trasparente la panoramica e lo zoom nell'angolo in basso a destra dell'immagine.
  14. Selezionare il contorno della regione. Selezionare il grip intermedio del cartiglio e trascinarlo per escludere il cartiglio dall'oggetto regione.

    L'esempio seguente mostra l'aspetto dell'immagine dopo aver perfezionato l'oggetto regione per escludere il cartiglio.

  15. Fare clic con il pulsante destro del mouse e scegliere Modalità perfezionamento dal menu di scelta rapida. Ora la Modalità perfezionamento è disattivata.

    Copiare l'oggetto regione nell'immagine vuota

  16. Eseguire lo zoom indietro per visualizzare le estensioni del disegno.
  17. Utilizzare il comando COPIA per copiare l'oggetto regione nell'angolo in alto a sinistra dell'immagine vuota.

    Creare un oggetto regione rettangolare

  18. In Gestione immagini, selezionare Mech_02b, fare clic col pulsante destro del mouse e selezionare Zoom su per vedere l'immagine.
  19. Fare clic su Regione rettangolare sulla barra degli strumenti REM.
  20. Disegnare un rettangolo che racchiuda l'intera immagine, vale a dire tutte le entità, il cartiglio e il contorno.

    Il rettangolo e tutte le entità contenute sono ora visualizzati in rosso, ad indicare che sono stati inclusi come parte dell'oggetto regione REM.

    Copiare l'oggetto regione

  21. Eseguire lo zoom alle estensioni del disegno.
  22. Utilizzare COPIA per copiare l'oggetto regione nell'angolo in basso a sinistra dell'immagine che contiene l'altro oggetto regione.

    Unire gli oggetti regione all'immagine

  23. Selezionare i due oggetti regione, fare clic con il pulsante destro del mouse e scegliere Unisci a immagine raster.

    Dopo aver unito gli oggetti regione all'immagine, gli oggetti non sono più visualizzati in rosso in quanto non sono più oggetti regione. Gli oggetti nelle immagini originali, tuttavia, sono ancora definiti come oggetti regione.

  24. Fare clic con il pulsante destro del mouse e scegliere REMDeseleziona tutto dal menu di scelta rapida.

    Gli oggetti regione REM non sono più definiti nelle immagini originali. In un progetto vero, a questo punto è possibile salvare la nuova immagine (Mech_new_02) e dissociare le immagini di origine dal disegno.

  25. Chiudere il disegno senza salvare le modifiche.