Consente di visualizzare temporaneamente i vincoli di quota e di allineamento in una vista, per risolvere problemi o modificare elementi nel modello.
- Nella barra dei controlli della vista, fare clic su
(Mostra vincoli).
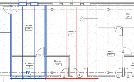
L'area di disegno Mostra vincoli visualizza un bordo colorato, ad indicare che è attiva la modalità Mostra vincoli. Tutti i vincoli vengono visualizzati a colori, mentre gli elementi del modello vengono visualizzati con mezzitoni (in grigio).
Nota: Per semplificare la visualizzazione dei vincoli in questa modalità, verificare che l'opzione di visualizzazione Linee sottili non sia selezionata (scheda Vista

gruppo Grafica


Linee sottili).
- Selezionare un vincolo per evidenziare gli elementi vincolati.
Nell'esempio riportato di seguito, il vincolo a sinistra è selezionato e sono evidenziati anche i due muri vincolati e le due finestre vincolate.
- Facoltativo: per rimuovere il vincolo è sufficiente eliminarlo oppure sbloccarlo.
Nota: I vincoli aggiunti in modalità di disegno per un elemento vengono visualizzati con mezzitoni a colori. Fare doppio clic sull'elemento per attivare la modalità di disegno e quindi modificare o rimuovere il vincolo.
- Nella barra dei controlli della vista, fare clic su
per disattivare la modalità Mostra vincoli.