ミニ チュートリアル: イメージを削除で消去、クロップする

この練習では、いくつかの小さな図形をイメージから削除で消去し、別の図形をクロップします。

注: スタートアップ ガイドのサンプル ファイルは、https://www.autodesk.com/raster_design_getting_started_guide からダウンロードできます。サンプル ファイルをワークステーションにダウンロードして展開し、この練習で使用してください。
オブジェクトを削除で消したり、クロップするには
1

サンプル ファイル LiveView_Rubbing.dwg を開きます。

スキャンされたイメージにいくつかの個別のイメージがあります。

2

「Mandrel Rib Plate」オブジェクトがはっきり見えるように表示を拡大ズームします。

次の手順では、このオブジェクトをイメージから削除します。

3

[ラスター]メニュー[削除][長方形領域消しゴム]を選択します。

クリックして、「Mandrel Rib Plate」とそのタイトル ブロックの周囲に長方形を描いて、右クリックし、[Enter]をクリックして領域を消去します。

続きの練習: 左下コーナーにある「Jig Bracket」以外のオブジェクトを消去します。これを行うには、[削除]メニューで他の領域タイプのいくつかを使用します。

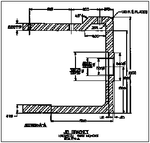
4

左下隅にある「Jig Bracket」がはっきり見えるように表示を拡大ズームします。

次の手順で、このオブジェクトの回りにクロップ領域を作成します。

5

[ラスター]メニュー[クロップ][長方形領域]を選択します。

クリックして「Jig Bracket」とそのタイトル ブロックの回りに長方形を描き、クリックします。

クロップ領域の外側にあるすべてのイメージが削除されます。必要に応じて、この「Jig Bracket」イメージを新しい名前で保存できます。