パート 11: 寸法を追加する

この練習では、建物モデルに寸法を追加して、メインの建物のフットプリントの寸法を記入します。

カテゴリ 新規ユーザ
所要時間 15 分
使用するチュートリアル ファイル GSG_11_dimensions.rvt

作業を開始する前に、GSG_11_dimensions.rvt ファイルをダウンロードします。チュートリアル用の練習ファイルをまだダウンロードしていない場合は、この zip ファイルをダウンロードしてください。

目的

ビデオを見る

寸法を追加する

  1. GSG_11_dimensions.rvt のプロジェクトを開きます。
  2. [01 - Store Floor]平面図が開いていることを確認します。
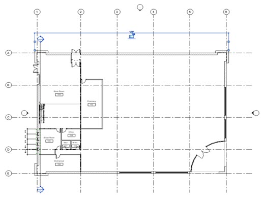
  3. [注釈]タブ [寸法]パネル (平行寸法)をクリックします。
  4. オプション バーで[壁の面を優先]を選択して、[選択]で[個々の参照]を選択します。
  5. 建物の幅の寸法を記入します。
    • 西の壁の外側面をクリックします。
    • 東の壁の外側面をクリックします。
    • カーソルを建物の上に移動し、クリックして寸法を配置します。

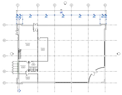
通芯の寸法

  1. オプション バーで、次のようにします。
    • [注釈]タブ [寸法]パネル (平行寸法)をクリックします。
    • [選択]で[壁全部]を選択します。
    • [オプション]をクリックします。
    • [自動寸法オプション]ダイアログ ボックスで[通芯交点]を選択し、[OK]をクリックします。
  2. 南の壁の窓開口部と交差の寸法を記入します。
    • オフセットの北側の外壁をクリックします。
    • 東と西の壁をクリックします。
    • カーソルを建物の上に移動し、クリックして寸法を配置します。
  3. [修正]ボタンをクリックします。

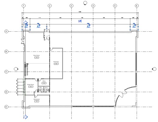
開口部の寸法

  1. オプション バーで、次のようにします。
    • [注釈]タブ [寸法]パネル (平行寸法)をクリックします。
    • [選択]で[壁全部]を選択します。
    • [オプション]をクリックします。
    • [自動寸法オプション]ダイアログで[開口部]を選択し、[OK]をクリックします。
  2. 南の壁の窓開口部と交差の寸法を記入します。
    • オフセットの北側の外壁をクリックします。
    • 東と西の壁をクリックします。
    • カーソルを建物の上に移動し、クリックして寸法を配置します。
  3. [修正]ボタンをクリックします。

パート 12: メモを追加する