この練習では、外壁のフットプリントを使用して陸屋根を作成し、入口にオーバーハングが付いた勾配のある屋根を作成します。
|
作業を開始する前に、GSG_05_add_roof.rvt ファイルをダウンロードします。チュートリアル用の練習ファイルをまだダウンロードしていない場合は、この zip ファイルをダウンロードしてください。
目的
[屋根]ドロップダウン 
(屋根(フットプリント))をクリックします。
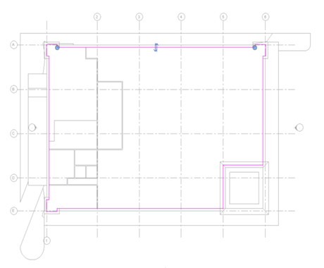
(壁を選択)をクリックします。

[屋根]ドロップダウン 
(屋根(フットプリント))をクリックします。
[屋根]ドロップダウン 
(屋根(フットプリント))をクリックします。

(既定の 3D ビュー)をクリックします。
内壁が屋根に突き抜けていることが確認できます。

[ビューに表示]を選び、すべての内壁を選択します。
[壁を修正]パネル 
(アタッチ(上部/下部))をクリックします。
これで壁は屋根を突き抜けなくなりました。
