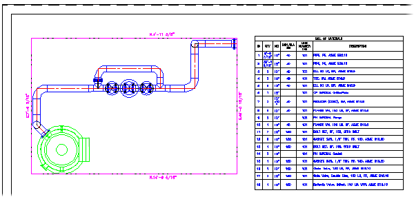
PLANTORTHOPLACEBOM

직교 BOM 테이블을 작성합니다.

액세스 방법

 리본:  직교 뷰 탭 테이블 설정
 명령 입력:  plantorthoplacebom

프롬프트 리스트

다음과 같은 프롬프트가 표시됩니다.

뷰포트 선택: 직교 뷰포트를 선택합니다.

첫 번째 구석 지정: 직교 BOM 테이블의 왼쪽 위를 지정합니다.

두 번째 구석 지정: 테이블 폭을 지정합니다. 지정한 높이는 무시됩니다.