깊이 신호 정의

깊이 신호를 현재 입면 또는 단면뷰에 적용하려면 그래픽 화면표시 옵션 대화상자에서 설정을 정의합니다.

주: 깊이 신호를 동일한 유형의 여러 뷰에 적용하려면 깊이 신호 설정을 정의하는 뷰 템플릿을 작성하고 사용합니다.
  1. 구획도 또는 입면도를 엽니다(건축 또는 좌표 분야만 해당).
  2. 최상의 효과와 향상된 성능을 위해 먼 쪽 자르기가 뷰에 대해 지정되었는지 확인:
    1. 특성 팔레트의 먼 쪽 자르기에서 값 필드를 클릭합니다.
    2. 먼 쪽 자르기 대화상자에서 선을 제외하고 자르기 또는 선을 포함하여 자르기를 선택하고 확인을 클릭합니다.
    3. 특성 팔레트의 먼 쪽 자르기 간격띄우기에서 뷰가 잘리는 위치를 제어하는 값을 지정합니다.
  3. 뷰 조절 막대에서 비주얼 스타일그래픽 화면표시 옵션을 클릭합니다.
  4. 깊이 신호를 확장하고 깊이 표시를 선택합니다.
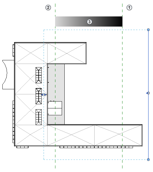
  5. 페이드 시작/끝 위치의 경우 이중 슬라이더 근거리 및 원거리 컨트롤을 이동하여 그라데이션 효과의 경계를 지정합니다. 근거리 및 원거리 값은 뷰 자르기 평면의 앞면(근거리) 및 뒷면(원거리)에서 떨어진 정도를 나타내는 백분율을 의미합니다.
    • 깊이 신호는 뷰어와의 거리를 늘려 객체를 배경색(페이드)에 혼합하여 구현합니다. 이 혼합이 적용되는 거리 범위는 슬라이더에 의해 제어됩니다.
    • 근거리 슬라이더는 혼합이 시작되는 거리를 제어합니다. 이 거리 앞에 있는 모든 항목은 페이드되지 않습니다. 일반적으로 모델의 가장 앞쪽에 있는 피쳐가 최대 강도로 표시될 때까지 이 슬라이더를 이동할 수 있습니다.
    • 원거리 슬라이더는 요소가 페이드 범위 백분율 표시를 초과하는 거리를 컨트롤합니다.
    • 뷰는 최대 강도로 시작하고 페이드 범위 슬라이더(다음 단계)로 설정된 백분율까지 페이드됩니다.
  6. 페이드 범위 슬라이더를 이동하여 원거리 끝 위치의 뷰 강도를 지정합니다. 원거리 끝 위치를 벗어난 모든 항목은 원거리 끝 위치에 있는 요소와 동일한 그라데이션으로 표시됩니다.

    예를 들어, 0으로 지정하면 가장 멀리에 위치하는 요소는 보이지 않게 됩니다. 대부분의 경우 0보다 크게 백분율을 설정하여 요소가 표시되고 인쇄될 수 있도록 합니다(원하는 경우).

  7. 적용을 클릭하여 대화상자를 종료하지 않고 결과를 보거나, 확인을 클릭하여 설정을 적용하고 대화상자를 닫습니다.