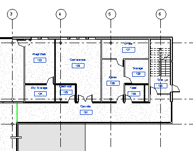
Pomieszczenia i oznaczenia pomieszczeń są w programie Revit oddzielnymi, ale odnoszącymi się do siebie, komponentami.
Pomieszczenia są elementami modelu w programie Revit, podobnie jak ściany i drzwi. Oznaczenia pomieszczeń są elementami opisu, które można dodawać i wyświetlać w rzutach i przekrojach. Na oznaczeniach pomieszczeń mogą być wyświetlane wartości skojarzonych parametrów, takie jak numer pomieszczenia, nazwa pomieszczenia, obliczona powierzchnia i kubatura.
