W tym ćwiczeniu dodasz wymiary do modelu budynku, aby określić podrys budynku głównego.
|
Kategoria
|
Nowi użytkownicy
|
|
Wymagany czas
|
15 minut
|
|
Używane pliki ćwiczeniowe
|
GSG_11_dimensions.rvt
|
|
Przed rozpoczęciem pobierz plik GSG_11_dimensions.rvt. Pobierz ten plik zip (jeśli jeszcze nie pobrano plików do tych ćwiczeń).
Cele
- Zwymiaruj szerokość budynku.
- Użyj opcji przecięć siatki z wymiarami dopasowanymi, aby automatycznie uwzględnić punkty przecięcia siatek przy wymiarowaniu ścian zewnętrznych.
- Użyj opcji Otwory z wymiarem wyrównanym, aby automatycznie dodać otwory okienne podczas wymiarowania ściany zewnętrznej.
Obejrzyj nagranie wideo
Dodawanie wymiarów
- Otwórz projekt GSG_11_dimensions.rvt.
- Upewnij się, że rzut kondygnacji „01 — Kondygnacja sklepu” jest otwarty.
- Kliknij kolejno kartę Opis
panel Wymiar
(Wyrównany).
- Na pasku opcji wybierz opcję Powierzchnie ścian, a w polu Wskaż wybierz opcję Odniesienia indywidualne.
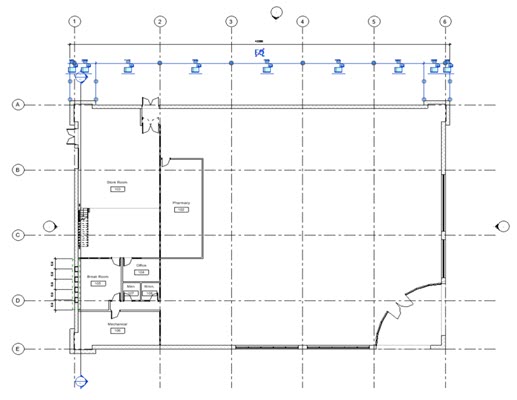
- Zwymiaruj szerokość budynku:
- Kliknij zewnętrzną powierzchnię ściany zachodniej.
- Kliknij zewnętrzną powierzchnię ściany wschodniej.
- Przesuń wskaźnik nad budynek i kliknij, aby wstawić wymiar.
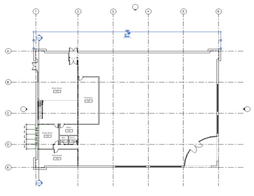
Siatki wymiarów
- Na pasku opcji:
- Kliknij kolejno kartę Opis
panel Wymiar
(Wyrównany).
- W polu Wskaż wybierz opcję Całe ściany.
- Kliknij przycisk Opcje.
- W oknie dialogowym Opcje autowymiarowania wybierz opcję Punkty przecięcia osi, a następnie kliknij przycisk OK.
- Zwymiaruj otwory okienne i przecięcia na ścianie południowej:
- Kliknij zewnętrzną ścianę północną z wnęką.
- Kliknij ściany wschodnią i zachodnią.
- Przesuń wskaźnik nad budynek i kliknij, aby wstawić wymiar.
- Kliknij opcję Zmień.
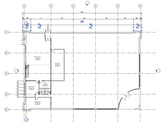
Wymiarowanie otworów
- Na pasku opcji:
- Kliknij kolejno kartę Opis
panel Wymiar
(Wyrównany).
- W polu Wskaż wybierz opcję Całe ściany.
- Kliknij przycisk Opcje.
- W oknie dialogowym Opcje autowymiarowania wybierz opcję Otwory, a następnie kliknij przycisk OK.
- Zwymiaruj otwory okienne i przecięcia na ścianie południowej:
- Kliknij zewnętrzną ścianę północną z wnęką.
- Kliknij ściany wschodnią i zachodnią.
- Przesuń wskaźnik nad budynek i kliknij, aby wstawić wymiar.
- Kliknij opcję Zmień.
Część 12: Dodawanie opisów