ПроезжаяЧасть

Элемент конструкции «ПроезжаяЧасть» используется для вставки звеньев с целью создания проезжей части с открепленным тротуаром. Проезжая часть и бордюр с водосборным лотком строятся на основе стандартных планов APWA для строительства общественных сооружений в редакции 2012 г.

Необходимо убедиться в том, что используемые размеры соответствуют выбранной интерпретации стандартного плана.

Полный бордюр:

Минимальный бордюр:

План:

Присоединение

Точка привязки находится на кромке, на задней поверхности бордюра или на линии стока/поверхности бордюра с водосборным лотком.

Входные параметры

Прим.: Если не указаны другие единицы, все размеры приводятся в метрах или футах. Если значение поперечного уклона не указано в процентах (знак «%»), все значения поперечного уклона даны как отношение длины к высоте (например, 4:1).

Параметр

Описание

Тип

По умолчанию

Сторона Указывает сторону, на которой требуется разместить элемент конструкции Слева / Справа Справа
Тип бордюра Указание бордюра, который необходимо использовать A1-6/A1-8/A2-6/A2-8/A3-6/A3-8/B1-6/B2-6/B3-6 A2-6
Точка привязки Указание точки привязки для бордюра Кромка/ЗадняяПоверхностьБордюра/Линия стока/Поверхность Выступ
Толщина основания Толщина дополнительного слоя основания в точке кромки. Если дополнительного слоя основания нет, следует использовать нулевую глубину. Числовое, положительное

0,5 фута

0,15 м

Поверхность бордюра по низу Высота поверхности бордюра в самой нижней точке проезжей части Числовое, положительное

0,083 фута

0,025 м

Тип проезжей части Тип проезжей части Тип A/Тип B Тип B
Толщина проезжей части Толщина проезжей части Числовое, положительное

0,5 фута

0,15 м

Высота тротуара Толщина тротуара Числовое, положительное

0,5 фута

0,15 м

Ширина тротуара Ширина тротуара Числовое, положительное

4 фута

1,2 м

Уклон тротуара Уклон тротуара Числовое 2%
Значение Y Расстояние до крыла, измеренное вдоль бордюра Числовое, положительное

4 фута

1,2 м

Значение X Ширина пандуса проезжей части Числовое, положительное

3 фута

1 м

Целевые параметры

В этом разделе перечислены параметры данного элемента конструкции, которые могут соответствовать одному или нескольким целевым объектам. Подробные сведения приведены в разделе Задание целей коридора.

Параметр

Описание

Статус

Верх бордюра Используется, чтобы определить состояние проезжей части для ее построения. Следующие типы объектов могут использоваться в качестве целевых для указания отметки: профили, 3D полилинии, характерные линии и фигуры съемки. Требуется

Динамические логические назначения

Размеры бордюра с водосборным лотком и проезжей части.

Выходные параметры

Нет.

Режим

Точка привязки используется как исходная точка. Затем выполняется построение формы бордюра с водосборным лотком. Верх бордюра корректируется на основе профиля верха бордюра.

Тип проезжей части определяется с использованием пользовательских параметров. Целевая отметка верха бордюра не может определить верх бордюра выше высоты самого бордюра или ниже грани бордюра в нижней точке. При выборе более высокой отметки верха бордюра используется максимальная высота бордюра. При использовании нижней отметки верха бордюра выбор низкого значения входного параметра приводит к использованию отметки, превышающей значение линии стока/поверхности и грани бордюра.

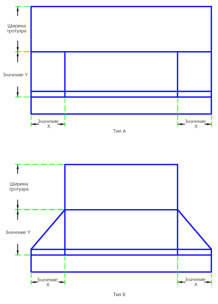
Для типа А:

Проезжая часть составляет одно целое с тротуаром по всей его длине. Уклон проезжей части рассчитывается с учетом полной высоты бордюра и уклона тротуара на расстоянии, выраженном значением Х.

Для типа B:

Проезжая часть не составляет одно целое с тротуаром по всей его длине. Для расстояния Y, измеренного вдоль тротуара, проезжая часть имеет форму треугольного крыла. Значение расстояния для проезжей части рассчитывается исходя из пропорциональной высоты бордюра и входных параметров X и Y.

Тротуар:

Расположение тротуара определяется на основе входных параметров в расчете на полную высоту бордюра вдоль всей проезжей части.

Работа в режиме компоновки

В режиме компоновки этот элемент конструкции прорисовывает полную высоту бордюра и тротуар.

Коды точек, звеньев и форм

В следующей таблице для этого элемента конструкции перечислены коды точек, звеньев и форм, для которых имеются назначаемые коды. Коды точек, звеньев или форм данного элемента конструкции, которым коды не назначаются, в таблице не приводятся.

Точка, Звено или Форма

Код

Описание

P1 НизБордюра Задняя поверхность бордюра
P2 ВерхБордюра Верх бордюра
P3 ПроектнаяПоверхность Проектная поверхность или линия стока
P4 Кромка Кромка водосборного лотка
P10 ПроезжаяЧасть_ЗаПределамиТротуара_Внутр За пределами проезжей части и в пределах тротуара
P11 Тротуар_Наруж За пределами тротуара
L1-L3, L6 Верх, бордюр Верх бордюра
L4 ПроезжаяЧасть, Верх Верхняя поверхность проезжей части
L5 Тротуар, Верх Верхняя поверхность тротуара.
L8 БордюрНиз, База_отсчета Нижняя поверхность бордюра
L9, L15, L21 Дополнительный слой основания, база отсчета Низ дополнительного слоя основания
L14 ПроезжаяЧасть_ДопОсн Нижняя поверхность бетонной проезжей части
L17 Тротуар_ДопОсн Нижний край тротуара
S1 Бордюр Площадь бетонного бордюра
S2, S4, S6 Дополнительный слой основания Дополнительный слой основания
S3 ПроезжаяЧасть Площадь бетонной проезжей части
S5 Тротуар Площадь бетонного тротуара

Диаграмма кодирования