В этом упражнении выполняется добавление размеров в модель здания с целью определения размера проекции главного здания.
|
Сначала скачайте файл GSG_11_dimensions.rvt. Скачайте этот файл ZIP (если ранее не скачивали файлы упражнений для учебных пособий).
Цели
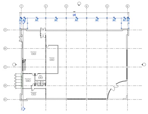
панель "Размеры"
("Параллельные").

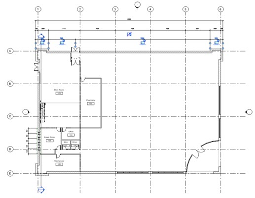
панель "Размеры"
("Параллельные").

панель "Размеры"
("Параллельные").
