Для устранения ошибок или изменения элементов в модели на виде можно на какое-то время отобразить размер и зависимости выравнивания.
- На панели управления видами нажмите
("Показать зависимости").
В области "Показать зависимости" отображается цвет рамки, указывая на то, что режим "Показать зависимости" активен. Все зависимости отображаются в цвете, а элементы модели отображаются в полутонах (серый).
Прим.: Для облегчения просмотра зависимостей в данном режиме убедитесь в том, что параметр отображения "Тонкие линии" не выбран (вкладка "Вид"

панель "Графика"


"Тонкие линии").
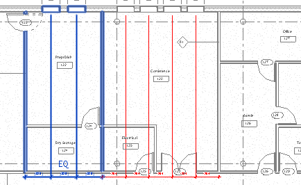
- При выборе зависимости будут выделены все связанные ей элементы.
В следующем примере при выбранной слева зависимости выделены 2 стены и 2 окна, связанные этой зависимостью.
- Необязательно: можно убрать зависимость путем удаления или разблокирования.
Прим.: Зависимости, добавленные к элементу в режиме эскиза, отображаются в полутонах. Дважды щелкните элемент, чтобы перейти в режим эскиза и изменить или удалить зависимость.
- На панели управления видом нажмите
для выхода из режима показа зависимостей.