Просмотрите примеры различных рабочих процессов по нанесению размеров монтажных деталей в видах рабочих чертежей для сборных элементов.
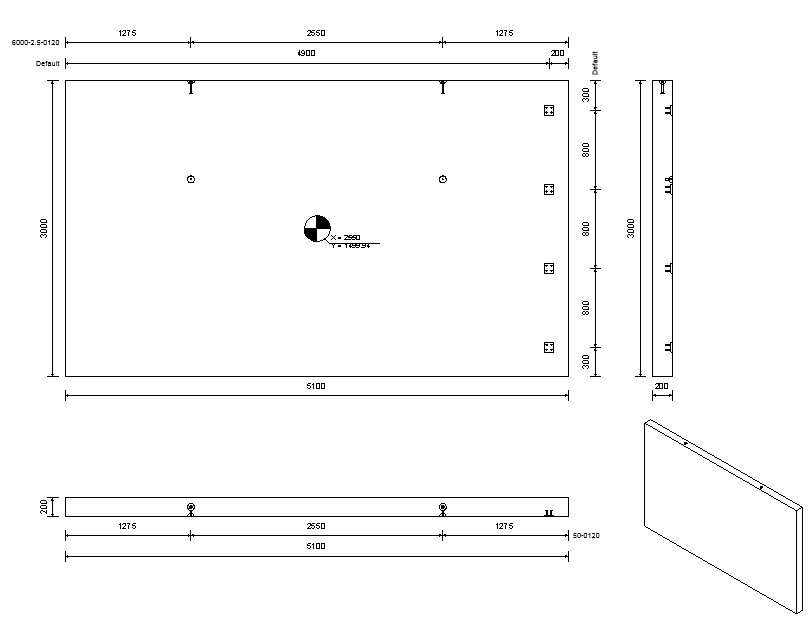
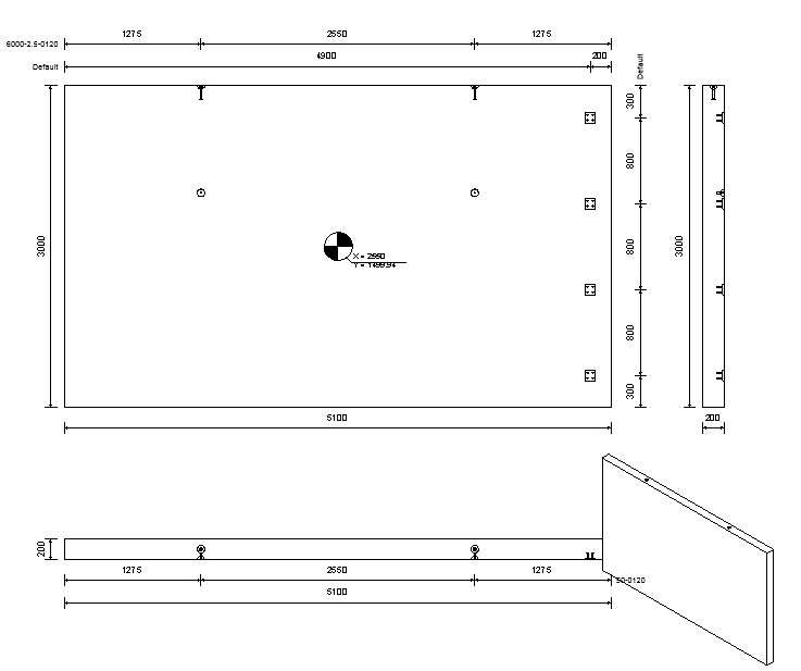
Размеры всех монтажных деталей одного семейства будут нанесены на одной линии, если монтажные детали размещены на одной стороне основного объекта. Опорным элементом для размещения является центр объекта. Размеры монтажных деталей с одинаковым именем семейства, которые располагаются над центром основного объекта, будут нанесены в верхней части объекта. Размеры монтажных деталей, которые располагаются под центром, будут нанесены в нижней части объекта. Аналогичное правило применяется для вертикальных размерных линий. Размерные точки на границах основного объекта добавляются к размерной линии вдобавок к размерным точкам монтажных деталей (одна точка слева и справа либо сверху и снизу).



панель «Сегментация»
(Разделить) для разделения стены.
панель «Соединения»
(Монтажные детали), чтобы добавить анкерные пластины в сборку.
панель «Производитель»
(Рабочие чертежи), чтобы создать рабочий чертеж для сборки.

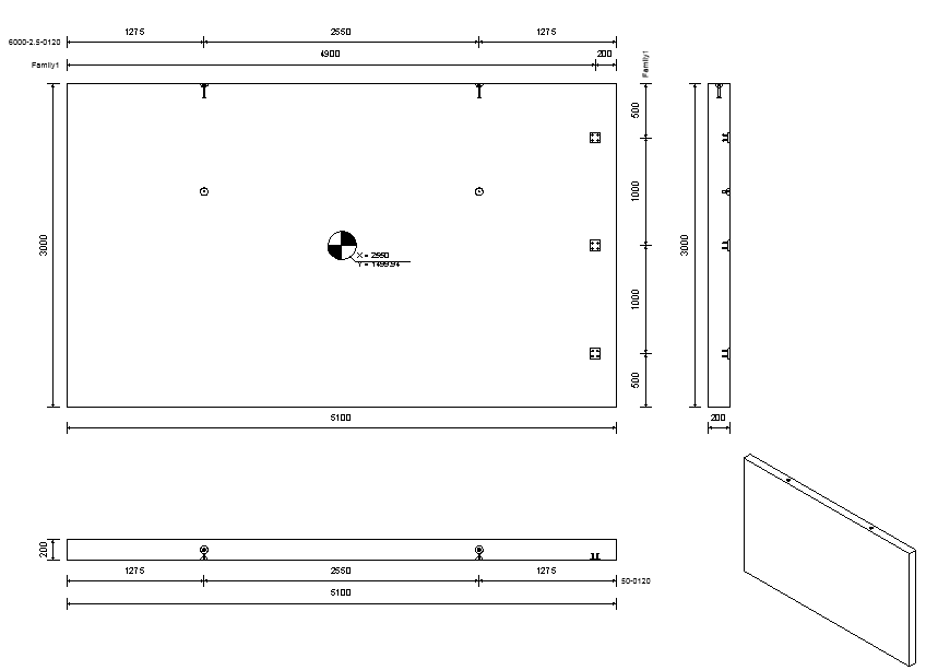
В зависимости от названия подкатегории размерные линии следует создавать только при отображении анкерных пластин на виде сверху (как видно в семействе). Для стены в данном примере — только при отображении вида спереди.


Задайте подкатегорию и параметр видимости, как в первом примере.
панель «Сегментация»
(Разделить) для разделения стены.
панель «Соединения»
(Монтажные детали), чтобы добавить анкерные пластины в сборку.
панель «Производитель»
(Рабочие чертежи), чтобы создать рабочий чертеж для сборки.

панель «Производитель»
(Рабочие чертежи), чтобы создать рабочий чертеж для сборки.

Размеры границ анкерной пластины нанесены во всех видах (с помощью одного размера, так как это то же семейство).
В видах спереди и сверху наносятся размеры только пластины (без анкеров), так как в этих видах видимы только круглые грани анкеров, из-за чего нет опорных элементов для нанесения размеров.


панель «Сегментация»
(Разделить) для разделения стены.
панель «Производитель»
(Рабочие чертежи), чтобы создать рабочий чертеж для сборки.
