了解此版本的 AutoCAD 2021 中的新增功能。
对“块”选项板新增了许多增强功能,包括改进了设置和控制第三方云提供程序(用于跨设备使用块)以及新的“收藏夹”选项卡。
如果您使用的是 AutoCAD Web 应用程序,请单击“在桌面中打开”以在 AutoCAD 或 AutoCAD LT 桌面版中打开图形。图形将自动保存,然后在本地安装的 AutoCAD 或 AutoCAD LT 桌面版本中打开。
增强功能包括项目管理、对扩展级调试配置的支持以及更轻松地加载 LSP 文件。
AutoCAD 帮助具有新的“快速参考”菜单、“您尝试过吗”文章现在以目录的形式进行组织,以及新的卡片式格式可方便访问学习视频。
本视频演示了此版本中的主要增强功能。
默认情况下,默认的“快速”模式会为“修剪”和“延伸”命令选择所有可能的边界。
修订云线现在包括其近似弧弦长(即每个圆弧段端点之间的距离)的单个值。
使用新的 BREAKATPOINT 命令,现在可以通过按 Enter 键重复功能区上的“在点处打断”工具。
在图形的平面图中,MEASUREGEOM 命令的“快速”选项现在支持测量由几何对象包围的空间内的面积和周长。
在新的“图形历史记录”选项板中查看云中存储的图形的版本历史记录,可以在其中将这些图形与图形的当前版本进行比较。
“块”选项板已得到增强,可更加方便地随时随地访问块。
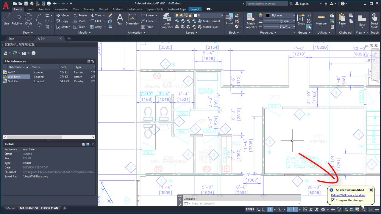
与图形“比较”功能类似,现在可以比较对当前图形中作为外部参照 (xref) 附着的图形文件所做的更改。
对手势的支持已得到增强,可获得更好的触摸体验。
二维中平移和缩放的速度已得到增强。
例如,#3.25,5.75用于在图形中的3.25,5.75处指定第二个点。
例如,3.25,5.75指定距第一个点3.25,5.75个单位的第二个点。
安全性增强功能:通过内部测试以及第三方评估和审计,AutoCAD Security 团队继续加强基于 AutoCAD 的产品以抵御新兴的网络威胁,并保持遵循当前标准和最佳实践。