使用视图模板,可以更快、更一致地将可见性和图形替换应用于视图。Revit

使用视图模板,可以快速将许多可见性和图形属性一次性应用于视图。视图模板的设置是基于项目级别管理的。使用视图模板时,更容易使模型的视图看起来一致。将同一视图模板应用于多个视图时,这些视图将看起来相同。
例如,您需要一组施工图文档的楼层平面,并且希望所有的楼层平面都有相同的外观。创建一个具有施工图文档所需全部可见性和图形替换的视图模板,然后将其应用于用于施工图文档的楼层平面视图。如果可见性要求发生更改,请对指定的视图模板进行更改,然后所有施工图文档的楼层平面都将随之更新。

。这三个主要工具是:
将模板属性应用于当前视图 - 选择一个模板,然后将其可见性设置应用于当前视图。
基于当前视图创建模板 - 使用当前视图中的可见性和图形设置来创建视图模板。这是一个开始创建模板的好方法。对视图的视图属性进行更改,以使其按所需样式显示。然后,基于该视图创建一个模板,以便可以将该模板指定给您模型的其他视图。
管理视图模板 - 将打开一个对话框,从中可以访问您模型中的所有视图模板,并且可以更改每个模板的视图属性设置。可以通过该对话框创建新的视图模板。
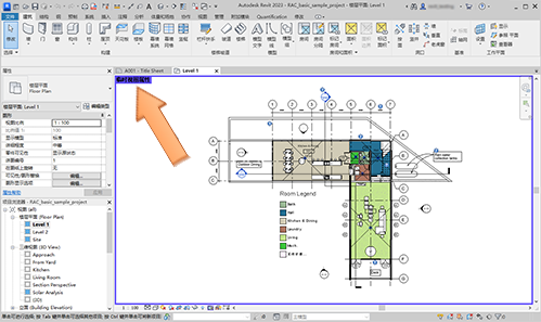
在“属性”选项板上,使用“视图模板”属性将视图模板指定给当前视图。当使用这种方式指定视图模板时,只有可指定给当前视图类型的模板才可用。模型中的其他视图模板将不会列出。
要了解如何使用视图模板,请观看以下视频:
开始在项目中使用视图模板时,先为不同用例创建许多视图模板。例如,为演示视图、施工图文档视图和协调视图创建视图模板。在完成创建这些视图模板后,现在可以根据需要将它们指定给各个视图。准备好每次使用的模板,以便轻松地根据需要组合视图,并且每个视图都以一致方式显示。


在项目模板中包含视图模板。使用传递项目标准工具,即可将视图模板从一个项目传递到另一个项目。可以继续开发视图模板,然后根据需要将它们从一个项目传递到另一个项目,以确保办公室范围内视图的一致性。
视图模板可控制视图外观的许多方面。其他方面(例如,比例、阴影或阶段状态)可以作为视图模板的一部分包含在内。视图模板所控制视图的所有属性都会显示在视图属性对话框的右侧。创建视图模板时,请务必查看所控制视图的所有方面,以便充分利用视图模板。
![]() |
![]() |