Configuration 2: Wall-Mounted Luminaire

Many lighting applications are mounted to a vertical wall.

light wall mounted

wall mount examples

The Wall-mounted simulation configuration is based on the guidelines provided in the UL1598 test procedure for the surface-mount and recessed luminaire configurations. To simulate the natural convection and temperature distribution, immerse the test wall within a volume of air. There are several ways to construct the test box, based on the desired level of fidelity with physical testing. The amount of detail in the wall test box model determines how much heat is conducted to the wall.

Surface Wall Luminaire

The analysis region should be constructed based on the configuration of the text fixture. For each configuration, construct a volume of air around the fixture to simulate air movement due to natural convection and heat transfer.

There are three ways to simulate a Surface Wall Luminaire:

Adiabatic Wall

Attach the fixture directly to an adiabatic (insulated) wall. Because no heat is conducted through the wall, this approach simulates a "worst case" situation in which heat is only removed through natural convection. Use this configuration to quickly simulate design options for comparative studies.

Do not include the junction box or luminaire mounting bracket as these details have little impact on the results, and increase mesh size and run time.

wall geometry

Note: Air enters from the bottom and exits through the top. For more about the ideal flow profile and troubleshooting...

Simplified test box construction

This configuration allows heat to conduct from the fixture and convect into the surrounding air. While this setup does not replicate a physical installation, it does remove the unknown thermal sink performance of the wall, and mimics the UL thermal test strategy within a temperature-controlled chamber.

The air volume surrounding the wall and fixture should extend the following dimensions:

   

UL-specified test box construction

The UL Test Setup uses the same dimensions as the Hardwood configuration, but uses the UL Test box instead of the solid wood base. Use this test configuration to closely mimic physical testing.

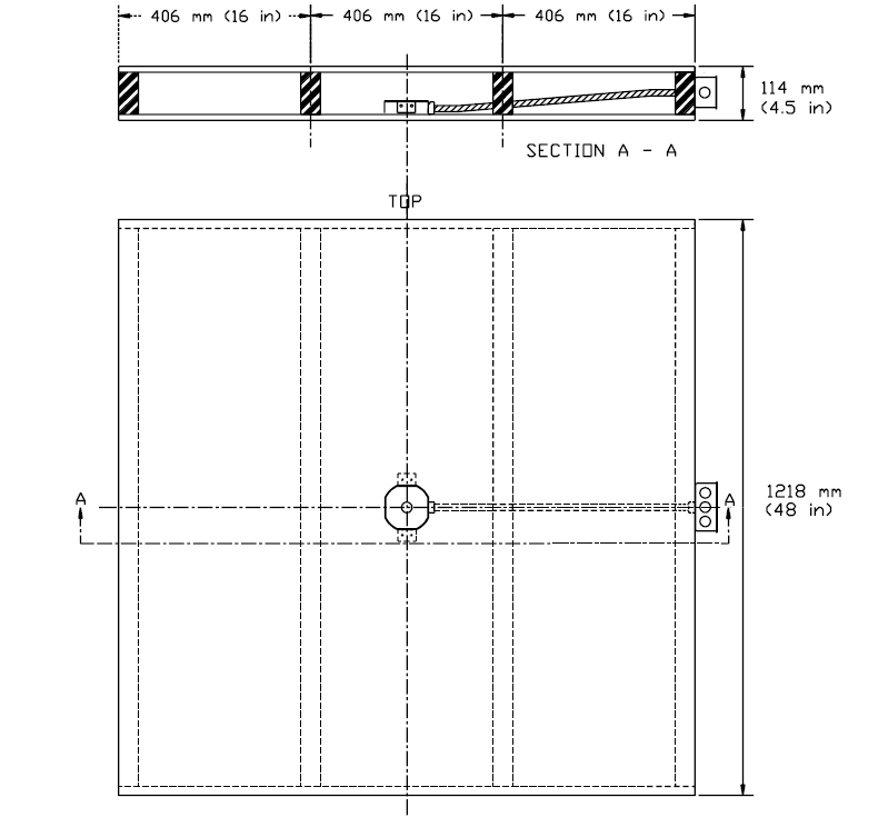
Construct the wall test fixture as specified by the UL 1598 specification:

wall details

Simplify the octagonal junction box in CAD to remove all of the sheet metal detail.

Enclose the test fixture in a volume of air. The air volume surrounding the text fixture should extend the following dimensions:

goemetry flush

Recessed Wall Luminaire

The analysis region should be constructed based on the configuration of the text fixture. For each configuration, construct a volume of air around the fixture to simulate air movement due to natural convection and heat transfer.

There are two ways to simulate a Recessed Wall Luminaire:

Simplified test box construction

This configuration allows heat to conduct from the fixture into a solid air. While this setup does not replicate a physical installation, it does remove the unknown thermal sink performance of the wall, and mimics the UL thermal test strategy within a temperature-controlled chamber.

The air volume surrounding the wall and fixture should extend the following dimensions:

recessed hardwoood

UL-specified test box construction

Use the same dimensions to simulate the UL Test Setup as the Hardwood configuration. Use this test configuration to closely mimic physical testing. Instead of a hardwood base, use the UL Test box, as defined in UL 1598:

In the following images, D = 8.5 inches, minimum, and F = 6 inches minimum. (Use a larger value for F if the luminaire is deeper.) The upper drawings show a top view. The lower drawings show a side view:

recessed box

Enclose the test fixture in a volume of air. The air volume surrounding the text fixture should extend the following dimensions:

box in air

Boundary Conditions

Reference: UL 1598

Unit 1 |Bulbs |Ceiling Mounted