瞭解 AutoCAD 2021 版的新功能。
「圖塊」選項板做了一些增強功能,包括改進設置和協力廠商雲端服務提供者在不同裝置間使用圖塊的控制,以及新的「我的最愛」頁籤。
如果您使用的是 AutoCAD 網頁應用程式,請按一下「以桌面版開啟」,即可在 AutoCAD 或 AutoCAD LT 桌面版中開啟圖面。您的圖面會自動儲存,然後在本端安裝的 AutoCAD 或 AutoCAD LT 桌面版中開啟。
增強功能包括專案管理、支援延伸層級除錯規劃,以及更輕鬆地載入 LSP 檔。
AutoCAD 說明有一個新的「快速參考」功能表,「您是否嘗試過」文章現在會放在一個目錄中,新的卡片格式能讓您更輕鬆地存取學習視訊。
此視訊將展示此版本中最重要的改良功能。
預設的「快速」模式會為「修剪」和「延伸」指令,預設選取所有潛在邊界。
修訂雲形現在包括一個值做為其近似的弧弦長,即每個弧線段端點之間的距離。
使用新的 BREAKATPOINT 指令,現在可按 Enter 來重複功能區上的「切斷於點」工具。
MEASUREGEOM 指令的「快速」選項現在支援測量由圖面平面視圖中的幾何物件封閉的空間內的面積和周長。
在新「圖面歷程」選項板中檢視儲存在雲端的圖面版本歷程,您可以在其中將這些版本與目前版本的圖面進行比較。
「圖塊」選項板已增強,可讓您隨時隨地更方便地存取圖塊。
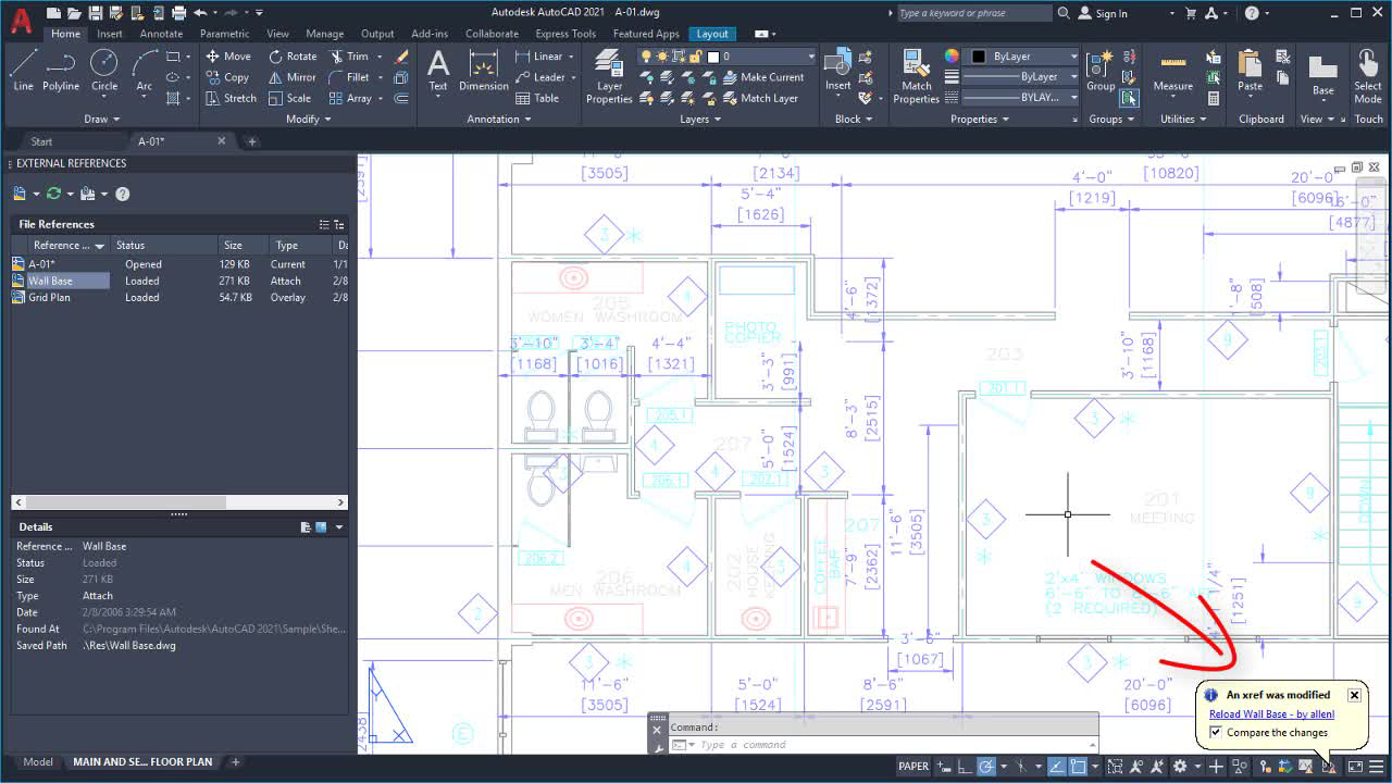
與圖面比較功能類似,您現在可以比較以外部參考貼附在目前圖面中的圖檔所做的變更。
我們增強了對手勢的支援,以提供更好的觸控體驗。
增加在 2D 中平移和縮放的速度。
例如,#3.25,5.75指定圖面中第二點3.25,5.75。
例如,3.25,5.75指定從第一點到第二點3.25,5.75個單位的第二點。
安全性增強功能:AutoCAD 安全性團隊同時使用內部測試和協力廠商的評估與檢核,持續強化 AutoCAD 系列產品應付新興的網路威脅,持續符合目前的標準和最佳作法。