若要取得更多資訊,請參閱〈定義公差層疊〉。
從以下影像導出封閉線性標註鏈的基本方程式。
 
   
 
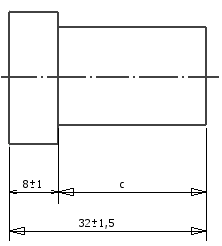
a = 32 ± 1.5 mm、b = 8 ± 1 mm
 
   
 
增加/減少元素
如果遞增元素增加,封閉元素也會增加。如果遞減元素增加,在鏈的其他元素保持不變的情況下,封閉元素會減少。
| 封閉元素: | 1. c = a - b | 
| 封閉元素的上限標註: | 2. c max = a max - b min | 
| 封閉元素的下限標註: | 3. c min = a min - b max | 
| 封閉元素的公差 (從方程式 2 中減去方程式 3) | 4. c max - c min = a max - a min - (b min - b max ) | 
| 例如 | 5. T c = T a + T b | 
通常,線性鏈公差滿足以下方程式。
 
   
 
同樣,可以採用一般格式書寫方程式 2 和方程式 3。
 
   
 
 
   
 
封閉元素的上限標註等於遞增元素上限標註的總和與遞減元素下限標註的總和之間的差值。
封閉元素的下限標註等於遞增元素下限標註的總和與遞減元素上限標註的總和之間的差值。
封閉元素的標稱標註可使用方程式 1 表示,如以下方程式所示。
 
   
 
封閉元素的上限偏差。
 
   
 
封閉元素的下限偏差。
 
  