使用 Revit 中的衍生式設計配置圖紙

使用衍生式設計 可自動探索圖紙配置。

本文改寫自 John Pierson 的這篇 Dynamo 部落格文章

塞滿視圖

設計師可以使用「衍生式設計」在 Revit 中執行一些較普通的工作。其中一項工作是配置圖紙。Generative Design Primer 提供一個在圖紙上盡可能塞滿視圖,並且包含回饋循環的範例。但是,許多 Revit 使用者都已經很熟悉圖紙上所需的視圖類型,需要更有用的方式來探索圖紙配置。

在這篇「您是否嘗試過」文章中,我們將示範如何使用衍生式設計 ,以真正能協助設計師的方式配置圖紙。

影片

這段影片概述如何使用衍生式設計 建立圖紙配置。影片中已設定好範例研究類型。請向下捲動以查看逐步指示。

感謝 John Pierson 提供影片

設置圖紙

此範例使用 rac_advanced_sample_project.rvt 範例模型。Revit 提供該範例專案,您也可以從這裡下載

請在以下位置下載此範例的研究類型 (Dynamo 圖表):塞滿視埠

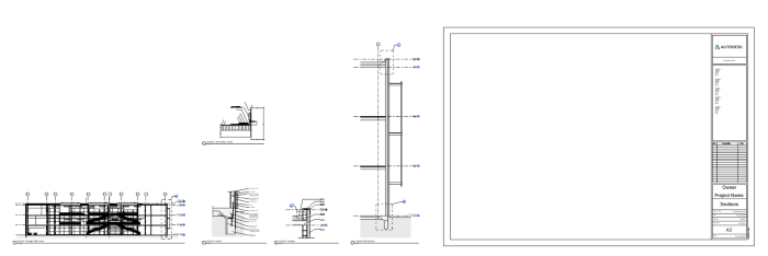
  1. 開啟 rac_advanced_sample_project.rvt 範例模型,並移至圖紙 A2 - Sections。
  2. 將您要放置的視圖拖放到一邊。這樣做可讓衍生式設計 提供放置方式。

Sheet A2 in the sample model, with views moved to the side

設置研究類型

接下來,我們使用「塞滿視埠」研究類型建立衍生式設計 研究。我們先在「建立研究」對話方塊中讓該研究類型可用。

移至「管理」衍生式設計 」面板 「建立研究」。

註: 或者,移至「管理」Dynamo衍生式設計 」 (位於頂部功能表) 「建立研究」,存取「建立研究」對話方塊。

此時,如果您將「Packing Viewports」資料夾 (包含 DYN 檔案和 Dependencies 資料夾) 儲存在與其他研究類型相同的位置,可能會在「建立研究」對話方塊中看到 packedViews 研究類型。

如果您看不到該研究類型,請遵循以下步驟:

  1. 選取「選擇資料夾」下拉式功能表旁的 Add folder icon「加入資料夾」。
  2. 按一下「+」圖示,並導覽至「Packing Viewports」圖表資料夾所在的路徑。資料夾應同時包含 DYN 檔案和 Dependencies 資料夾。
  3. 加入資料夾路徑後,您可以關閉「管理資料夾」對話方塊。

定義研究

Packed Views 研究類型現在應該可用於建立研究。

  1. 在「建立研究」對話方塊的「選擇資料夾」下拉式清單或研究類型清單中選取「packedViews」。
  2. 在「方法」下拉式清單中,將方法變更為「隨機」。
  3. 按一下對話方塊右上角的 Study options icon「研究選項」功能表,然後選取「儲存預設設定」。
  4. 按一下「產生」。衍生式設計 可能需要花費一些時間才能建立結果。

探索結果

您將在「探索結果」對話方塊中看到一些結果。選取任何結果可顯示較大的影像,您可以旋轉並拉近或拉遠影像查看更多詳細資料。視埠名稱會包括在預覽中,說明每個選項如何配置。

範例圖紙中共有 5 個視圖。您可以在「探索結果」對話方塊底部中心的平行座標圖表中使用篩選,來選取圖紙上您想要的視圖數。按一下並沿圖表中的軸 (垂直線) 拖曳以使用篩選。

Revit 中檢視結果:

  1. 選取您想要的結果,然後按一下「建立 Revit 元素」。這會在 Revit 中建立選擇的圖紙配置。
  2. 最小化「探索結果」對話方塊或將其移到旁邊,方便您可以看到 Revit 模型。
  3. 若要嘗試其他選項,請選取「退回」(Ctrl+Z),配置將會重置。
  4. 回到「探索結果」對話方塊,選取其他選項,然後再按一下「建立 Revit 元素」。圖紙配置將相應地更新。

Sheet layout option in the Explore Outcomes dialog and the same option generated in Revit

加入更多視圖

如果您想要在圖紙中加入更多視圖,請建立新研究。因為已經定義好研究類型和設定,所以過程很簡單快速。

  1. 將所需的視圖加到圖紙中。
  2. 建立新研究。您可以選取左下角的「建立研究」,直接從「探索結果」對話方塊建立研究。
  3. 選取「packedViews」研究類型。這些設定將預設為您先前儲存的設定,但是如果您想要 (例如選取其他圖紙),可以變更設定。
  4. 按一下「產生」。

檢閱並試驗不同的配置選項,如上節中所述。如果視圖太多而無法在圖紙上輕鬆佈滿,可以使用篩選來指定要放置的視圖數。超過此限制的所有視圖都會放在圖紙旁邊。

透過衍生式設計 ,可以減少探索圖紙配置時的單調工作。請嘗試一下,並在下方對本文評分,然後在意見方塊中輸入您的回饋,讓我們了解您的想法。