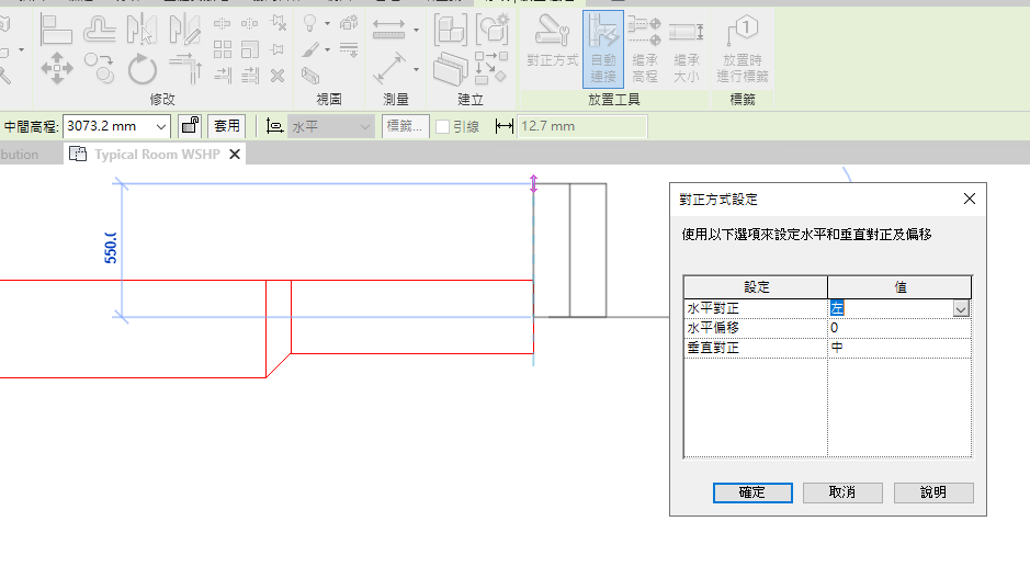
對正方式設定
使用以下設定,以對齊風管。
存取此對話方塊時,請於選取「風管」工具時,按一下
「對正方式設定」。您可指定以下對正方式配置選項。
水平對正方式:
將邊水平風管橫斷面,請使用「中心」、「左」或「右側的風管作為參考。
水平偏移:
指定您按一下圖面區域的位置與繪製風管位置間的偏移。在視圖中將風管系統放在另一個元件的固定距離時,此選項很有用。
垂直對正方式:
水平對齊風管剖面的邊緣,並使用風管的「中心」、「左」或「右」作為參考。
上層主題:
風管
相關概念
在平面視圖中繪製風管
在立面或剖面視圖中繪製風管