Tento postup slouží k vyloučení komponent s přiřazenou speciální definicí materiálu z obvodu 2D řezu.
Při vytvoření 2D řezu můžete zobrazit komponentu řezu nazvanou Obvod řezu. Obvod řezu je sloučení všech ploch objektů oříznutých podle čáry řezu, sloučených do jedné komponenty s jedním vzorem šrafování. Tento pohled se často používá pro 2D sekci.
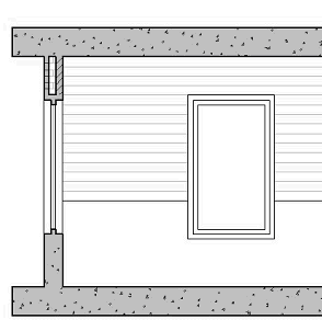
Ve výchozím nastavení jsou do obvodu řezu zahrnuty všechny komponenty, kterým je přiřazena definice materiálu. Některé definice materiálu, jako je například sklo, však můžete z obvodu řezu vyloučit.

2D obvod řezu s vyloučeným sklem (vlevo)

. Správce stylů se zobrazí s aktuálním výkresem, rozbalený do stromového zobrazení.
Reprezentace zobrazení uvedená tučným písmem je aktuální reprezentace zobrazení.