Vlastnost Disciplína určuje, jak se prvky specifické pro disciplínu zobrazení v pohledu.
Pomocí vlastnosti Disciplína můžete ovládat následující chování:
Vlastnost Disciplína ovlivňuje pohledy, ať používáte jeden model, který obsahuje více disciplín, nebo připojení modelů k dalším modelům specifickým pro disciplínu.
Tento parametr můžete použít také k uspořádání pohledů v Prohlížeči projektu. Viz část Uspořádání pohledů v Prohlížeči projektu.
Chcete-li vlastnost Disciplína nastavit pro daný pohled, vyberte jeho název v Prohlížeči projektu nebo pohled otevřete. Na paletě Vlastnosti je vlastnost Disciplína uvedena v části Grafika. Vyberte hodnotu ze seznamu.
Níže uvedené příklady jsou založeny na modelu, ve kterém následuje půdorys řezu podlaží 1. V půdorysu řezu značí zelená šipka rozsah celého pohledu pro odpovídající půdorysné pohledy. Modrá šipka označuje rozsah primárního pohledu, který byl rozšířen do volného prostoru nad podhledem a pod podlažím 1. Oranžová šipka označuje hloubku pohledu. (Viz část Rozsah pohledu.) V níže zobrazeném vzoru půdorysných pohledů je úroveň detailu nastavena na možnost Jemný, takže ilustrace strojírenských prvků a prvků elektroinstalace a trubek jsou lépe zobrazeny.

Podle potřeby si můžete model stáhnout, abyste lépe porozuměli tomu, jak vlastnost Disciplína ovlivňuje pohledy: view_discipline_example.rvt
Když vytvoříte pohled založený na existujícím pohledu, nový pohled převezme disciplínu původního pohledu. Toto pravidlo platí pro pohledy detailů, řezy a bokorysné a duplicitní pohledy.
Předpokládejme například, že otevřete konstrukční půdorysný pohled (půdorysný pohled, jehož vlastnost Disciplína je nastavena na hodnotu Konstrukce) a použijete nástroj Řez k vytvoření řezu půdorysného pohledu. Vlastnost Disciplína nového řezu je nastavena na možnost Konstrukce.
Popisky pohledů (symboly použité k označení řezů, výšek a detailů) se zobrazují v pohledu, pouze pokud se disciplína aktuálního pohledu shoduje s disciplínou cílových pohledů. Viz níže uvedené příklady.
Pokud je vlastnost Disciplína nastavena na hodnotu Architektura:
V pohledu jsou například zobrazeny architektonické a konstrukční sloupy a také strojírenské prvky a prvky elektroinstalace a trubek.
Příklady: V následujícím architektonickém půdorysu podlaží:
Na jedné straně stěny jsou kabelové lávky odkryté. Na druhé straně stěny jsou kabelové lávky zakryté architektonickým překrytím.
Popisek se zobrazí u řezu, jehož vlastnost Disciplína je nastavena na hodnotu Architektura. V půdorysu se nezobrazují popisky u pohledů přiřazených k jiným disciplínám.
Pokud je vlastnost Disciplína nastavena na hodnotu Konstrukce:
V pohledu jsou například zobrazeny architektonické a konstrukční sloupy a také strojírenské prvky a prvky elektroinstalace a trubek.
Příklady: V následujícím konstrukčním půdorysném pohledu:
Nenosné stěny se nezobrazují. (Porovnejte s architektonickým půdorysem zobrazeným výše).
Popisek se zobrazí u řezu, jehož vlastnost Disciplína je nastavena na hodnotu Konstrukce. V půdorysu se nezobrazují popisky u pohledů přiřazených k jiným disciplínám.
Skryté hrany se zobrazí stejně jako prvky rámových konstrukcí pod podlažím, protože rozsah pohledu půdorysu zasahuje také pod podlaží 1.

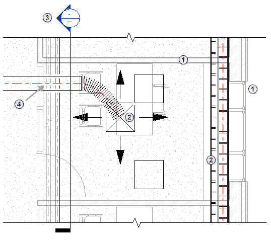
Pokud je vlastnost Disciplína nastavena na hodnotu Mechanické, Elektroinstalace nebo Domovní instalace:
Příklady: V následujícím mechanickém půdorysném pohledu:
Architektonické a konstrukční prvky (stěny, dveře, okna, nábytek), se zobrazí v půltónech na základě rozsahu pohledu. Stropní prvky nejsou v pohledech zobrazeny.
Mechanické a elektroinstalační prvky a prvky trubek se zobrazují na základě definování pomocí položky Styly objektů. Tyto prvky překrývají jiné prvky bez ohledu na jejich aktuální vertikální umístění v modelu.
Popisek se zobrazí u řezu, jehož vlastnost Disciplína je nastavena na hodnotu Mechanické. V půdorysu se nezobrazují popisky u pohledů přiřazených k jiným disciplínám.
Skryté hrany pro mechanické a elektroinstalační prvky a prvky trubek se v pohledu zobrazí.

Pokud je vlastnost Disciplína nastavena na hodnotu Koordinace:
V pohledu jsou například zobrazeny architektonické a konstrukční sloupy a také strojírenské prvky a prvky elektroinstalace a trubek.
Některé mechanické a elektroinstalační prvky a prvky trubek v rozsahu pohledu se zobrazí bez ohledu na to, zda je protíná rovina řezu.
Mechanické a elektroinstalační prvky a prvky trubek, které jsou nad rovinou řezu, jsou nakresleny na horní části jiných prvků. Pořadí kreslení těchto prvků je definováno podle relativních výšek z podlaží pohledu. Pokud se tyto prvky zobrazí pod rovinou řezu, jsou nakresleny s ohledem na vzdálenost od roviny řezu.
Příklady: V následujícím půdorysném pohledu koordinace:
Prvky všech disciplín se zobrazí v pohledu dle jeho rozsahu.
Mechanické a elektroinstalační prvky a prvky trubek se zobrazí a překryjí jiné prvky podle výše popsaných pravidel.
Popisky jsou zobrazeny u řezů pro všechny disciplíny.
