Detailní pohled je pohled na model, který je zobrazen jako odkaz či řez v jiných pohledech. Tento typ pohledu obvykle znázorňuje model v jemnějším měřítku než nadřazený pohled.
Detailní pohled lze vytvořit jako řez nebo odkaz. Pokud je detail vytvořen jako odkaz, lze k němu přiřadit jak poznámky řezu, tak poznámky odkazu. To znamená, že detailní pohled, který byl vytvořen jako odkaz, se může rovněž zobrazovat jako řez v pohledech, které protínají rozsah pohledu na odkaz. Odkaz můžete například použít k vytvoření detailního pohledu průsečíku stěn. Tento stejný odkaz se pak v rámci celkového pohledu řezu budovy může zobrazovat jako pohled řezu.
Viditelnost popisku detailního pohledu závisí na měřítku nadřazeného pohledu a na tom, zda se ohraničení ořezu detailního pohledu protíná nebo je zcela uvnitř ohraničení ořezu nadřazeného pohledu. Parametr detailního pohledu Skrýt v měřítkách menších než stanovuje měřítko, při kterém jsou detaily v jiných pohledech zobrazeny nebo skryty. Pokud má být například popisek detailu skrytý při měřítkách menších než 1/4” = 1’0”, nebude v pohledu s měřítkem 1/8" = 1'-0" popisek detailu zobrazen.
Všechny detailní pohledy jsou v Prohlížeči projektu zobrazeny jako detailní pohled bez ohledu na to, zda je nakreslíte jako odkaz nebo řez.
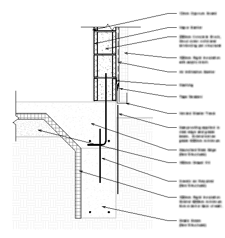
Na následujícím obrázku je znázorněna ukázka detailu řezu stěny s geometrií modelu jako podkladem a doplněného (v půltónech) a další 2D komponenty detailu nakreslené přes prvky modelu.
