Sie können Duplikate einer einzelnen Ansicht erstellen, um diese Ansicht mehreren Plänen hinzuzufügen.
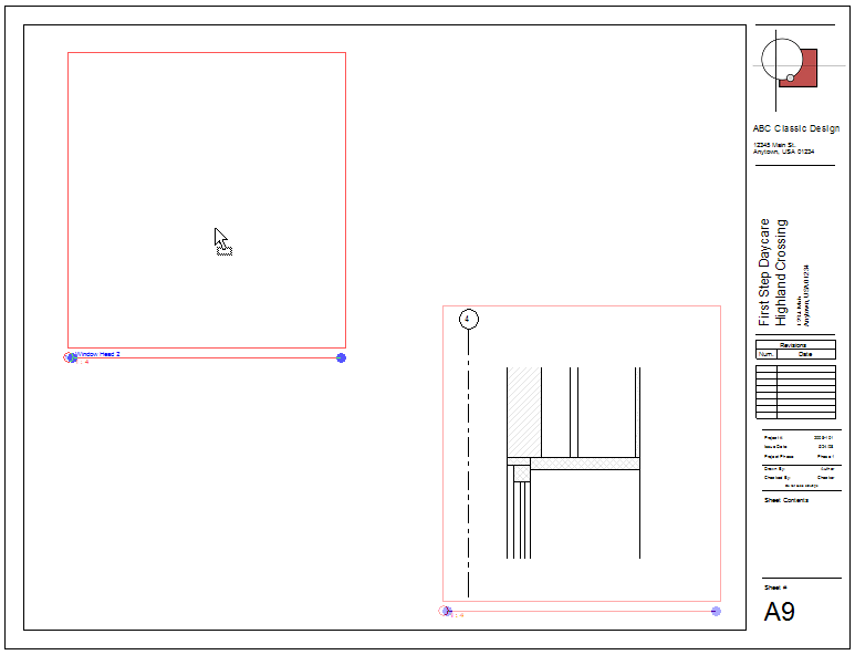
Sie können einem Plan eine oder mehrere Ansichten eines Gebäudes hinzufügen: Grundrisse, Lagepläne, Deckenpläne, Ansichten, 3D-Ansichten, Schnitte, Detailansichten, Zeichenansichten und gerenderte Ansichten. Jede Ansicht kann in nur einen Plan eingefügt werden. Wenn Sie eine bestimmte Ansicht mehreren Plänen in einem Projekt hinzufügen möchten, erstellen Sie Duplikate der Ansicht und fügen jedes Exemplar in einen anderen Plan ein. Sie können den Plan, in dem eine Ansicht platziert wurde, schnell öffnen und identifizieren, indem Sie im Projektbrowser mit der rechten Maustaste auf den Namen der Ansicht klicken und Plan öffnen wählen.
Anmerkung: Den Plänen können auch Legenden und Bauteillisten (darunter Ansichts- und Planlisten) hinzugefügt werden. Legenden und Bauteillisten können in mehrere Pläne eingefügt werden.
Es ist möglich, Standardeinstellungen auf die Ansichten in Plänen anzuwenden. Dazu stehen Ansichtsfenstertypen zur Verfügung. Sie können beispielsweise einen Ansichtsfenstertyp erstellen, bei dem kein Ansichtstitel im Plan angezeigt wird oder bei dem eine andere Farbe und Stärke für die Linie zwischen der Zeichnung und dem Titel verwendet werden.
So fügen Sie einem Plan Ansichten hinzu
- Öffnen Sie den Plan.
- Fügen Sie dem Plan Ansichten hinzu. Dazu haben Sie folgende Möglichkeiten:
- Erweitern Sie im Projektbrowser die Liste der Ansichten, suchen Sie die gewünschte Ansicht, und ziehen Sie sie in den Plan.
- Klicken Sie auf Registerkarte Ansicht
Gruppe Planzusammenstellung 
(Ansicht platzieren). Wählen Sie im Dialogfeld Ansichten eine Ansicht, und klicken Sie auf Ansicht zu Plan hinzufügen.
- Wenn Sie den Mauszeiger im Zeichenbereich über den Plan ziehen, wird ein Ansichtsfenster für die ausgewählte Ansicht angezeigt und bewegt sich mit dem Mauszeiger. Klicken Sie auf die gewünschte Stelle, um das Ansichtsfenster zu platzieren. Folgen Sie den Anweisungen unter Ausrichten von Ansichten in einem Plan, um eine genaue Platzierung auf den Plänen zu gewährleisten. Verwenden Sie den Objektfang an Plan, um den Objektfang zwischen Bezugselementen im Modellansichtsfenster und Beschriftungen im Plan zu aktivieren.
- Fügen Sie gegebenenfalls weitere Ansichten zum Plan hinzu, wie in den Schritten 2 und 3 beschrieben.
- Sie können einzelne Ansichten in einem Plan bei Bedarf ändern:
- Um den im Plan angezeigten Ansichtstitel zu ändern, doppelklicken Sie auf den Titel und bearbeiten ihn.
- Um die Ansicht an eine andere Stelle des Plans zu verschieben, wählen Sie ihr Ansichtsfenster aus und ziehen es. Sie können die Ansichten zur genauen Platzierung auf die Rasterlinien ausrichten.
Beispiel einer Tragwerksansicht