In dieser Übung vervollständigen Sie das Innere des Modells, indem Sie eine Treppe zum Zwischengeschoss auf der unteren Ebene hinzufügen und dann das Geländer am Zwischengeschoss ändern.
|
Kategorie
|
Neue Benutzer
|
|
Erforderliche Zeit
|
15 Minuten
|
|
Verwendete Lernprogrammdateien
|
GSG_09_stairs_railings.rvt
|
|
Bevor Sie beginnen, laden Sie die Datei GSG_09_stairs_railings.rvt herunter. Laden Sie diese ZIP-Datei herunter (falls Sie die Übungsdateien für die Lernprogramme noch nicht heruntergeladen haben).
Ziele
- Erstellen einer Treppe zwischen der Ladenebene und dem Zwischengeschoss.
- Ändern des Treppengeländers, um das Zwischengeschoss einzubeziehen.
- Ändern des Geländertyps in ein Rohrgeländer.
Video ansehen
Erstellen von Treppen
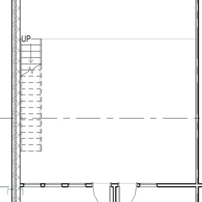
- Öffnen Sie das Projekt GSG_09_stairs_railings.rvt.
- Stellen Sie sicher, dass der Grundriss 01 - Store Floor geöffnet ist.
- Klicken Sie auf Registerkarte Architektur
Gruppe Erschließung
(Treppe).
- Führen Sie in der Eigenschaftenpalette unter Abhängigkeiten folgende Schritte durch:
- Wählen Sie als Basisebene 01 - Store Floor aus.
- Wählen Sie für Oberste Ebene die Option Zwischengeschoss aus.
- Legen Sie in der Optionsleiste die Positionslinie auf Lauf: links fest.
- Klicken Sie im Ladenraum auf die Ecke der Unterlage Zwischengeschoss, um den Treppenlauf zu starten.
- Bewegen Sie den Mauszeiger nach unten, bis die QuickInfo angibt, dass keine Steigungen verbleiben, und klicken Sie, um den Endpunkt der Treppe anzugeben.
- Klicken Sie in der Gruppe Modus auf
(Bearbeitungsmodus beenden).
Ändern des Geländertyps
- Klicken Sie im Schnellzugriff-Werkzeugkasten auf
(Standard-3D-Ansicht).
- Wählen Sie das Flachdach aus, und verwenden Sie dann die Option
(Temporär ausblenden/isolieren) in den Steuerelementen für Ansichten, und wählen Sie Element ausblenden.
- Wählen Sie das Geländer auf der Seite der Treppe, nahe der Wand, aus.
- Wählen Sie in der Typenwahl 900 mm Rohrwand aus.
- Klicken Sie in der Warnmeldung auf Typ löschen.
- Wählen Sie die Geländer auf der anderen Seite der Treppe aus.
- Wählen Sie in der Typenwahl 900 mm Rohr aus.
Teil 10: Erstellen von Ansichten