Parte 2: creación de muros

En este ejercicio, trabajará con diferentes niveles para añadir muros exteriores e interiores, y un corredor al proyecto.

Categoría Usuarios nuevos
Tiempo necesario 15 minutos
Archivos de aprendizaje utilizados GSG_02_Create_Walls.rvt

Antes de comenzar, descargue el archivo de datos GSG_02_Create_Walls.rvt. Descargue este archivo zip (si aún no ha descargado los archivos de ejercicios de los aprendizajes).

Objetivos

Ver el vídeo

Creación de muros exteriores

  1. Abra el proyecto GSG_02_Create_Walls.rvt.
    Nota: Se han añadido rejillas a este conjunto de datos para ayudarle en la lección. Para obtener más información sobre la adición de rejillas, consulte Añadir rejillas.
  2. En el Navegador de proyectos, en Planos del suelo, haga doble clic en 00 - Cimentación para abrir la vista en el área de dibujo.
  3. Haga clic en la ficha Arquitecturagrupo Construir(Muro).
  4. En la paleta Propiedades, haga clic en la lista desplegable del selector de tipo y elija Exterior básico - Enlucido en ladrillo en bloque.
  5. En la barra de opciones:
    • En Altura, seleccione 03 - Parapeto inferior.
    • En Línea de ubicación, seleccione Cara de acabado: Exterior.
    • Compruebe que la opción Cadena esté seleccionada.
  6. Haga clic en la ficha Modificar | Colocar Murogrupo Dibujar (Línea).
  7. Dibuje muros que comiencen en el punto 1 del área de dibujo y terminen en el punto 18 y, a continuación, añada otro muro del 18 al 1.

    Estos puntos se han añadido al proyecto para que sea más fácil dibujar muros en determinadas ubicaciones.

    Nota: Utilice la rueda de desplazamiento del ratón para ampliar o reducir la vista, o encuadrar a medida que coloca los muros.
  8. Pulse Esc para salir de la herramienta Muro.
  9. Haga clic en la ficha Vistagrupo Crear (Vista 3D por defecto).

Modificación de muros exteriores

  1. Al trabajar en la vista 3D, seleccione los muros en las esquinas del edificio. Utilice una selección de ventana contenedora y mantenga pulsada la tecla Ctrl para añadir muros a la selección.
  2. En la sección Restricción de base de la paleta Propiedades, seleccione 04 - Parapeto superior y haga clic en Aplicar.
    1. Pulse Esc para anular la selección de los muros.
  3. Seleccione los dos muros ubicados en la esquina frontal derecha del edificio. En la paleta Propiedades, defina el Desfase de base en 4250 mm.
  4. En el selector de tipo, cambie el tipo de muro a Exterior - Enlucido en ladrillo en bloque en la entrada.

Adición de muros interiores

  1. En el parámetro Planos de planta del Navegador de proyectos, haga doble clic en 01- Planta de tienda.
  2. Haga clic en la ficha Arquitecturagrupo Construir(Muro).
  3. En el selector de tipo, elija Interior - Partición de 138 mm (1- h).
  4. En la barra de opciones:
    • En Altura, seleccione 03 - Parapeto inferior.
    • Para Línea de ubicación, seleccione Eje del muro.
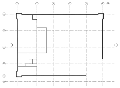
  5. Utilice la siguiente imagen como guía para colocar muros interiores para crear habitaciones:
    • La colocación no tiene por qué ser exacta.
    • Al diseñar muros, puede resultar útil activar o desactivar la opción Cadena. Esta opción permite colocar varios muros de extremo a extremo. Con la opción Cadena desactivada, deben especificarse los dos puntos finales de cada muro. Experimente con ambas configuraciones.
  6. Modifique muros para crear un corredor:
    • Haga clic en la ficha Modificargrupo Modificar (Dividir elemento).
    • Haga clic en el muro de la ubicación señalada con una línea roja corta en la imagen anterior.
    • En el grupo Modificar, haga clic en (Recortar/Extender a esquina).
    • Recorte el muro dividido para crear un corredor, tal y como se muestra.
      Nota: Al recortar en Revit, seleccione las partes de los elementos que desea conservar.
  7. Haga clic en (Modificar) para completar el comando.

Parte 3: creación de un terreno y de una plataforma de construcción