En este ejercicio, creará una cubierta plana mediante el perímetro de los muros exteriores y una cubierta inclinada con un voladizo en la entrada.
|
Categoría
|
Usuarios nuevos
|
|
Tiempo necesario
|
10 minutos
|
|
Archivos de aprendizaje utilizados
|
GSG_05_add_roof.rvt
|
|
Antes de comenzar, descargue el archivo GSG_05_add_roof.rvt. Descargue este archivo zip (si aún no ha descargado los archivos de ejercicios de los aprendizajes).
Objetivos
- Añadir líneas de cubierta con una pendiente y un voladizo definidos.
- Añadir una cubierta plana.
- Enlazar muros interiores a la cubierta.
Ver el vídeo
Dibujar la cubierta
- Abra el proyecto GSG_05_add_roof.rvt.
- Abra el plano de planta 02 - Parapeto inferior.
- Haga clic en la ficha Arquitectura
menú desplegable Cubierta
(Cubierta por perímetro).
- Crear una pendiente de cubierta con un voladizo:
- En el grupo Dibujar, haga clic en
(Seleccionar muros).
- En la opción Voladizo de la barra de opciones, introduzca 600 y desactive la opción Define pendiente.
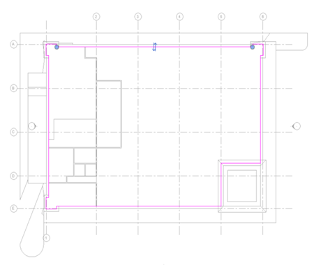
- En el área de dibujo, resalte una entrada de muro. Cuando aparezca una línea discontinua en el exterior del muro, pulse la tecla Tab para seleccionar la cadena de muros y haga clic para colocar las líneas de cubierta.
- En la paleta Propiedades, establezca el Nivel base en 03 - Parapeto superior.
- En el grupo Modo, haga clic en
(Finalizar) para colocar la cubierta.
- Haga clic en Modificar para finalizar el comando.
- Dibujar una cubierta plana:
- En la paleta Propiedades, establezca el valor de Subyacente en 01 - Planta de tienda.
- Haga clic en la ficha Arquitectura
menú desplegable Cubierta
(Cubierta por perímetro).
- En el grupo Dibujar, haga clic en
(Seleccionar muros).
- En la barra de opciones, establezca Voladizo en 0 y desactive la opción Define pendiente.
- En la paleta Propiedades, establezca el Desfase de base desde nivel en -750.
- En el área de dibujo, realice lo siguiente:
- Resalte un muro exterior.
- Pulse la tecla Tab para seleccionar la cadena de muros.
- Haga clic para colocar las líneas de cubierta.
- En el grupo Modo, haga clic en
(Finalizar).
Parte 6: colocación de puertas