Ejemplos de acotación de piezas de montaje en dibujos de detalles de prefabricado

Consulte diferentes ejemplos de flujo de trabajo de acotación de piezas de montaje en vistas de dibujos de detalles de prefabricado.

Acotación de piezas de montaje en una línea de cota

Las cotas de todas las piezas de montaje de la misma familia se colocarán en una línea si las piezas de montaje se han colocado en el mismo lado del anfitrión. La referencia de esta colocación es el centro del elemento. Todas las piezas de montaje con el mismo nombre de familia que se encuentren sobre el centro del anfitrión se acotarán sobre el elemento. Las piezas de montaje que se encuentren por debajo del centro se acotarán debajo del elemento. La misma regla se aplica a las líneas de cota verticales. Los puntos de cota en las extensiones del anfitrión se añaden a la línea de cota, además de los puntos de cota de las piezas de montaje (un punto a izquierda y derecha o arriba y abajo).

Ejemplo: acotación del centro de pletinas de anclaje en ambas direcciones en una vista superior

  1. Abra la familia de pletinas de anclaje desde: Libraries\US Metric\Structural Connections\Mounting Parts\Fastening Plates\M_Plate with Anchors.rfa


  2. En el Navegador de proyectos, cambia a Planos de planta, Nivel de referencia y cree una línea de modelo horizontal y una vertical que se intersequen en el centro de la pletina de anclaje.


  3. Defina la subcategoría "Cota_superior" y establézcala como la subcategoría de las dos líneas.
  4. Defina el parámetro de ejemplar de línea de cota Visibilidad y establezca las líneas como invisibles.
  5. Cargue la familia de pletinas de anclaje en el proyecto y colóquela en un muro.


  6. Haga clic en la ficha Prefabricado grupo Segmentación (Dividir) para dividir el muro.
  7. Haga clic en la ficha Prefabricado grupo Conexiones (Piezas de montaje) para añadir las pletinas de anclaje al montaje.
  8. Haga clic en la ficha Prefabricado grupo Fabricación (Dibujos de detalles) para crear un dibujo de detalles para el montaje.
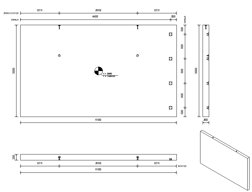
Se acota el centro de las pletinas de anclaje en la vista desde la parte superior (en una línea, ya que son de la misma familia):


En función del nombre de la subcategoría, las líneas de cota solo deben crearse al visualizar las pletinas de anclaje desde la parte superior (como se muestra en la familia). En el caso del muro de este ejemplo, esto solo se realiza en la vista frontal.

Si se han añadido pletinas en la cara superior del muro, las familias se acotarán solo en la vista superior del dibujo:




Ejemplo: acotación de la familia de pletinas de anclaje solo mediante una línea de cota

  1. Cree una única línea de cota en lugar de dos líneas que se intersequen en el centro. Coloque la línea en el centro de la familia, ortogonal al plano de la pletina de anclaje.
  2. Establezca una subcategoría y el parámetro de visibilidad como en el primer ejemplo.

  3. Cargue la familia en un proyecto y colóquela en un muro.
  4. Haga clic en la ficha Prefabricado grupo Segmentación (Dividir) para dividir el muro.
  5. Haga clic en la ficha Prefabricado grupo Conexiones (Piezas de montaje) para añadir las pletinas de anclaje al montaje.
  6. Haga clic en la ficha Prefabricado grupo Fabricación (Dibujos de detalles) para crear un dibujo de detalles para el montaje.


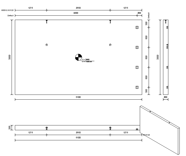
La familia se acotará de la misma forma que en el primer ejemplo, pero con dos importantes diferencias:
  • En el primer ejemplo, habría sido posible crear solo una línea como se mostró anteriormente, obteniendo cotas solo de forma vertical y horizontal; en el segundo ejemplo, ambas direcciones se acotan mediante la misma línea de referencia.
  • Si la pletina de anclaje se añade rotada en el primer ejemplo, no se puede acotar de ninguna forma (las líneas de referencia ya no se encuentran paralelas al eje del muro); en el segundo ejemplo, siempre se acota el centro de la pletina.

Ejemplo: acotación de la pletina de anclaje mediante la curva de nivel de la familia

  1. Elimine todas las líneas de cota de la familia.
  2. Cargue la familia en el proyecto.
  3. Haga clic en la ficha Prefabricado grupo Fabricación (Dibujos de detalles) para crear un dibujo de detalles para el montaje.


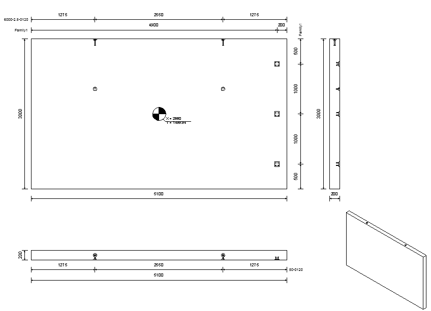
Las extensiones de las pletinas de anclaje se acotan en todas las vistas (mediante una cota, ya que siempre se trata de la misma familia).

En las vistas superior y frontal, solo se acota la pletina (sin los anclajes), ya que en estas vistas solo se muestran las caras redondas de los anclajes, por lo que no hay referencias a la cota.

Ejemplo: acotación mediante familias anidadas

  1. Cree una familia nueva mediante la plantilla basada en cara Modelo genérico métrico.
  2. Cargue las pletinas de anclaje con acotación en la familia y coloque tres ejemplares en la cara superior del cuerpo de la familia.


  3. Nota: El parámetro de ejemplar de línea de cota Visibilidad debe transferirse a la nueva familia.
  4. Coloque la nueva familia en el muro.


  5. Haga clic en la ficha Prefabricado grupo Segmentación (Dividir) para dividir el muro.
  6. Haga clic en la ficha Prefabricado grupo Fabricación (Dibujos de detalles) para crear un dibujo de detalles para el montaje.
Las pletinas de anclaje solo se acotan en la vista frontal: