Cree vistas de detalle para añadir información a determinadas partes del modelo.
Ficha Vistagrupo Crear (Llamada)
Ficha Vistagrupo Crear (Sección)
Temas de esta sección
Acerca de las vistas de detalle
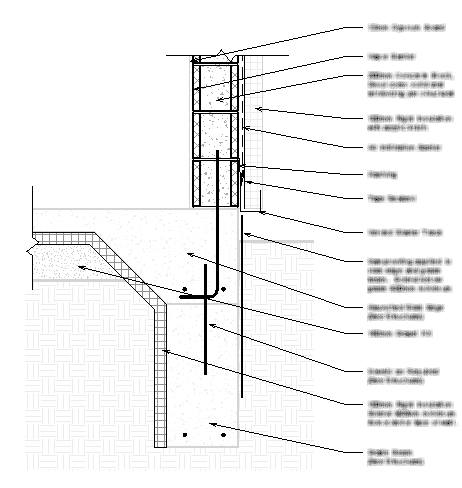
Una vista de detalle es una vista del modelo que, en otras vistas, aparece como llamada o sección. Esta clase de vista suele representar el modelo a escalas de detalle más precisas que la vista principal.
Acerca de las referencias a una vista de llamada
Al crear una llamada de detalle en una vista de plano, alzado o en sección, puede vincular la vista a un área concreta del modelo de construcción.
Crear una vista de detalle
Puede crear una llamada desde un plano, una sección o una vista de alzado y luego añadir componentes de detalle utilizando la geometría de modelo como base. Al crear un detalle de llamada o sección, puede hacer referencia a otro detalle o vista de diseño en el modelo.
Crear una vista de detalle
Al duplicar una vista, puede determinar si desea que la geometría de modelo y la geometría de detalle se copien en la nueva vista.
Vídeo: Duplicar vistas
Cree duplicados de vistas del modelo para presentar diferentes tipos de información.
Guardar una vista en un proyecto externo
Puede guardar una vista en un proyecto externo de Revit LT. Con esta operación se guardan en un nuevo archivo de proyecto la vista y todos los elementos (de modelo y específicos de vista) visibles en ella.