En este ejercicio, añadirá cotas al modelo de construcción para acotar el perímetro del edificio principal.
|
Antes de comenzar, descargue el archivo GSG_11_dimensions.rvt. Descargue este archivo zip (si aún no ha descargado los archivos de ejercicios de los aprendizajes).
Objetivos
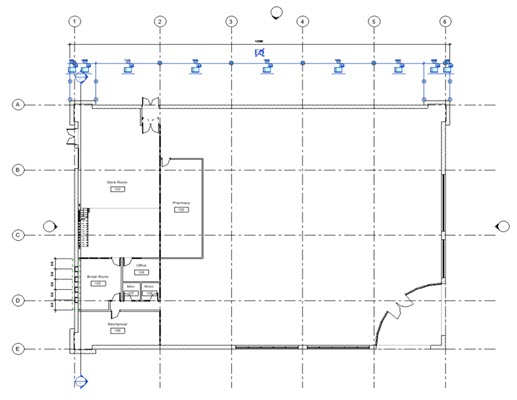
grupo Cota
(Alineada).

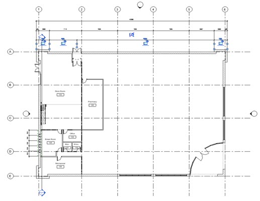
grupo Cota
(Alineada).

grupo Cota
(Alineada).
