Une configuration d'affichage est un jeu de paramètres d'affichage affectés à des directions de visualisation.
Une configuration d'affichage est généralement créée pour une tâche de conception ou un type de dessin particulier. Pour utiliser une configuration d'affichage, vous devez lui affecter une fenêtre. Les dessins créés à partir des gabarits fournis avec AutoCAD Architecture 2023 toolset contiennent des onglets de présentation avec des fenêtres auxquels les configurations d'affichage pertinentes sont attribuées. Vous pouvez vous servir de la configuration affectée à une fenêtre, attribuer une configuration d'affichage différente ou personnaliser la configuration.
Vous pouvez identifier le paramètre d'affichage affecté à chaque direction de visualisation dans une configuration d'affichage à l'aide du Gestionnaire d'affichage. Le Gestionnaire d'affichage permet de gérer les éléments du système d'affichage. L'illustration suivante montre un dessin avec deux configurations d'affichage différentes : Semi-détaillé et Standard.

Exemples de configurations d'affichage dans le Gestionnaire d'affichage
Dans le Gestionnaire d'affichage, la configuration d'affichage Semi-détaillé est affectée à la fenêtre active du dessin (en gras). Dans le volet gauche, les paramètres d'affichage utilisés sont répertoriés sous le nom de la configuration. Les icônes en regard de chaque paramètre d'affichage indiquent la direction de visualisation à laquelle le paramètre d'affichage est appliqué. L'onglet Configuration dans le volet droit affiche la direction de visualisation sur laquelle chaque paramètre d'affichage est mappé. Dans cet exemple, la direction de visualisation en cours (affichée en gras) est Haut et le paramètre d'affichage correspondant est Plan. Les objets situés dans la fenêtre active sont affichés à l'aide de la représentation définie dans le paramètre d'affichage Plan.
Si vous remplacez la direction de visualisation dans la fenêtre active par Avant, les objets sont affichés selon les représentations définies dans le paramètre d'affichage Coupe_Elev. C'est également le cas lorsque la direction de visualisation de la fenêtre active devient Droite, Gauche ou Arrière.
Le paramètre d'affichage affecté à la direction de visualisation par défaut est utilisé lorsqu'une vue autre que l'une des six vues orthogonales est sélectionnée ou lorsque aucun paramètre d'affichage n'a été associé à une direction de visualisation. Si la direction de visualisation Dessous est affectée à la fenêtre active, les objets sont affichés avec le jeu de paramètres d'affichage Modèle associé à la direction par défaut.
La configuration d'affichage, la fenêtre en cours et l'objet interagissent de la façon suivante afin de déterminer les éléments qui sont affichés dans la fenêtre :
Une configuration d'affichage associe des paramètres d'affichage à des directions de visualisation spécifiques. Lorsqu'une direction de visualisation est sélectionnée, les représentations définies dans le paramètre d'affichage permettent de déterminer l'affichage de l'objet dans la fenêtre.
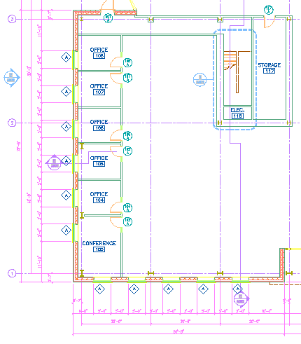
L'illustration suivante, par exemple, montre une fenêtre à laquelle est attribuée la configuration d'affichage Tracé et la direction de visualisation Haut. Les objets y sont affichés selon une représentation Plan.

Objets affichés dans la vue Haut et utilisant un paramètre d'affichage pour les vues en plan
Si vous sélectionnez la vue Avant dans cette fenêtre, les mêmes objets sont affichés selon une représentation de type Elévation.

Objets affichés dans la vue Avant et utilisant un paramètre d'affichage pour les vues d'élévation
Si vous sélectionnez la direction Isométrique S-O, les mêmes objets sont affichés selon une représentation en 3D.

Objets affichés dans la vue Isométrique S-O et utilisant un paramètre d'affichage pour les vues modèle.
Les configurations d'affichage d'un dessin dépendent du gabarit utilisé lors de la création du dessin en question. Si un dessin n'a pas été créé à partir d'un gabarit, il contient alors la configuration d'affichage Standard, laquelle inclut les paramètres d'affichage Plan et Modèle.