La plage de la vue est un ensemble de plans horizontaux qui contrôlent la visibilité et l'affichage des objets dans la vue en plan.
Vidéo : Utilisation de la plage de vue
Les vues en plan possèdent une propriété intitulée Plage de la vue, également appelée plage visible. Les plans horizontaux Haut, Plan de coupe et Bas définissent la plage de la vue. Les délimitations supérieure et inférieure représentent les parties la plus en haut et la plus en bas de la plage de la vue. Le plan de coupe détermine à quelle hauteur certains éléments de la vue sont coupés. Ces 3 plans définissent la plage principale de la vue.
La profondeur de la vue est un plan supplémentaire, en dehors de la plage principale. Modifiez la profondeur de la vue pour afficher les éléments sous la délimitation inférieure. Par défaut, la profondeur de la vue coïncide avec la délimitation inférieure.
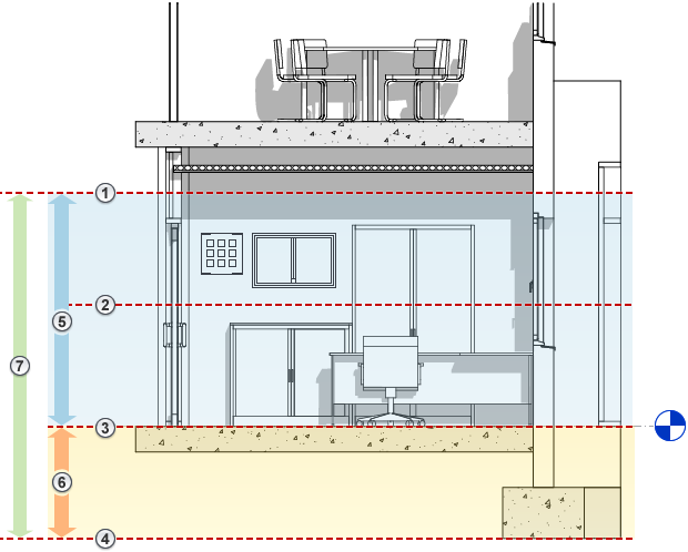
L'élévation suivante présente la plage de vue
d'une vue en plan : Haut
, Plan de coupe
, Bas
, Décalage (à partir du bas)
, Plage principale
et Profondeur de la vue
.
La vue en plan de droite montre le résultat pour cette plage de la vue.
|
|
Dans une vue en plan, Revit utilise les règles suivantes pour afficher les éléments qui sont coupés par le plan de coupe :
Les exceptions suivantes s'appliquent à l'affichage des éléments coupés par le plan de coupe :
Cette longueur de 2 mètres (ou 6 pieds) se mesure à partir de la partie supérieure de la zone de délimitation jusqu'au bas de la plage de la vue principale. Par exemple, si vous créez un mur dont le haut se situe à 2 mètres au-dessus de la délimitation inférieure, le mur est coupé au niveau du plan de coupe. Lorsque la partie supérieure du mur se trouve à moins de 1,83 mètre, l'intégralité du mur s'affiche comme une projection même s'il coupe le plan de coupe. Ce comportement se produit toujours lorsque la propriété Contrainte supérieure du mur est définie sur Sans contrainte. Si la propriété Contrainte supérieure du mur est spécifiée comme étant connectée, la position du plan de coupe est toujours utilisée pour indiquer si le mur est coupé ou projeté.
Conseil : les familles peuvent inclure une géométrie qui croise le plan de coupe, permettant ainsi de voir la géométrie au-dessus du plan de coupe.
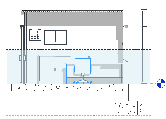
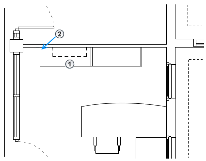
Dans l'élévation suivante, la mise en surbrillance de couleur bleue indique les éléments qui entrecroisent le plan de coupe.
La vue en plan de droite affiche les éléments suivants :
Eléments dessinés à l'aide de l'épaisseur de ligne de coupe. (murs, porte et fenêtre)
Eléments dessinés à l'aide de l'épaisseur de ligne de projection, car ils ne peuvent pas être coupés (meuble de rangement).
|
|
Dans une vue en plan, Revit dessine ces éléments à l'aide de l'épaisseur de ligne de projection de la catégorie d'élément.
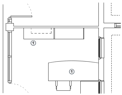
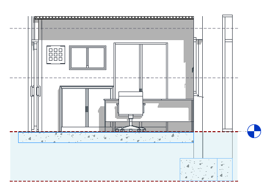
Dans l'élévation suivante, la mise en surbrillance de couleur bleue indique les éléments qui sont situés au-dessous du plan de coupe et au-dessus du plan de délimitation inférieur.
La vue en plan de droite affiche les éléments suivants :
Eléments qui sont dessinés à l'aide de l'épaisseur de ligne de projection, car ils ne sont pas coupés par le plan de coupe. (placard, bureau et la chaise)
|
|
Les éléments situés dans la profondeur de la vue sont dessinés avec le style de ligne <Profondeur de la vue>, quelle que soit la catégorie de l'élément.
Exceptions : les sols, planchers, escaliers et rampes d'accès situés hors de la plage de la vue utilisent une plage ajustée qui se trouve environ 1,22 mètre (4 pieds) au-dessous du bas de la plage principale. Dans cette plage ajustée, les éléments sont dessinés à l'aide de l'épaisseur de ligne de projection de la catégorie. S'ils existent en dehors de cette plage ajustée mais dans la profondeur de la vue, ces éléments sont dessinés à l'aide du style de ligne <Profondeur de la vue>.
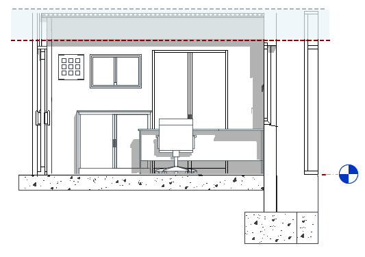
Par exemple, dans l'élévation suivante, la mise en surbrillance de couleur bleue indique les éléments qui se trouvent au-dessous du plan de délimitation inférieur et dans la profondeur de la vue.
La vue en plan de droite affiche les éléments suivants :
Un élément (fondation) dans la profondeur de vue est dessiné avec le style de ligne <Profondeur de la vue>.
Elément qui est dessiné à l'aide de l'épaisseur de ligne de projection de sa catégorie, car il répond aux conditions d'exception.
|
|
Ces éléments ne sont pas affichés dans une vue en plan sauf si leurs catégories sont fenêtre, meubles de rangement ou modèle générique. Les éléments de ces trois catégories sont dessinés à l'aide de l'épaisseur de ligne de projection comme s'ils étaient vus du dessus.
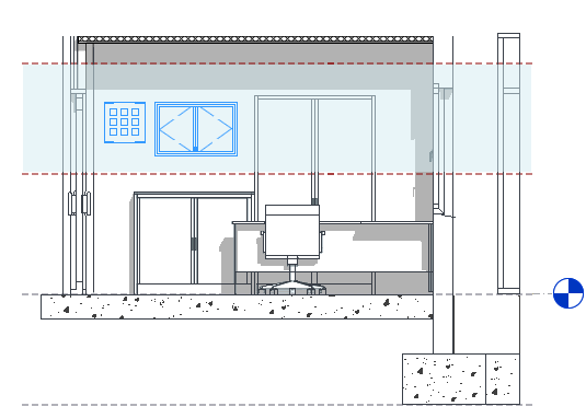
Par exemple, dans l'élévation suivante, la mise en surbrillance de couleur bleue indique les éléments qui se trouvent entre le haut de la plage de la vue et le plan de coupe.
La vue en plan de droite affiche les éléments suivants :
Meubles de rangement muraux dessinés à l'aide de l'épaisseur de ligne projetée. Dans ce cas, le style de ligne en pointillés des lignes de projection est défini dans la famille de meubles de rangement.
Applique murale (une catégorie d'éclairage) qui n'est pas dessinée dans le plan, car sa catégorie n'est pas fenêtre, meuble de rangement ou modèle générique.
|
|
Comme les vues en plan, les plans de faux-plafond possèdent également un paramètre de plage de vue, avec quelques différences.
