Etiquetez plusieurs armatures et jeux d'armatures avec une seule annotation.
Vidéo : annotations multi-armatures
groupe de fonctions Etiquette
Multi-armature
(Annotation multi-armature alignée)
groupe de fonctions Etiquette
Multi-armature
(Annotation multi-armature linéaire)

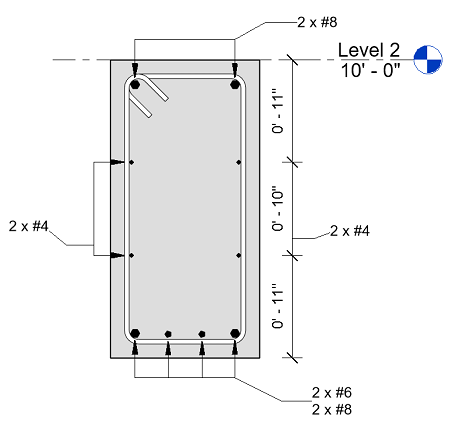
Avec les annotations multi-armature, vous pouvez sélectionner plusieurs armatures alignées et afficher les cotes entre les références d'armature, ainsi que les données de paramètres et le positionnement par rapport à l'hôte d'armature.