Dans cet exercice, vous allez créer un toit plat à l'aide du tracé des murs extérieurs et un toit incliné avec un débord à l'entrée.
|
Catégorie
|
Nouveaux utilisateurs
|
|
Temps nécessaire
|
10 minutes
|
|
Fichiers didacticiels utilisés
|
GSG_05_add_roof.rvt
|
|
Avant de commencer, téléchargez le fichier GSG_05_add_roof.rvt. Téléchargez ce fichier ZIP (si vous n’avez pas encore téléchargé les fichiers d’exercice pour les didacticiels).
Objectifs
- Ajouter des lignes de toit avec une pente et un débord définis.
- Ajouter un toit plat.
- Attacher les murs intérieurs au toit.
Visionner la vidéo
Dessin du toit
- Ouvrez un projet GSG_05_add_roof.rvt.
- Ouvrez le plan d'étage 02 - Lower Parapet.
- Cliquez sur l'onglet Architecture
le groupe de fonctions Toit
(Toit par tracé).
- Créez un toit incliné avec un débord :
- Dans le groupe de fonctions Dessiner, cliquez sur
(Choisir des murs).
- Dans la barre des options, pour la valeur de débord, entrez 600, puis choisissez Définit l'inclinaison.
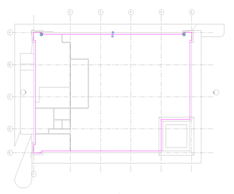
- Dans la zone de dessin, mettez en surbrillance un mur d'entrée. Lorsqu'une ligne en pointillés est affichée sur l'extérieur du mur, appuyez sur la touche Tabulation pour sélectionner la chaîne de murs, puis cliquez pour placer les lignes de toit.
- Dans la palette Propriétés, définissez le niveau de base sur 03 - Upper Parapet.
- Dans le groupe de fonctions Mode, cliquez sur
(Terminer) pour placer le toit.
- Cliquez sur Modifier pour quitter la commande.
- Dessinez un toit plat :
- Dans la palette Propriétés, définissez le niveau en fond de plan sur 01 - Store Floor.
- Cliquez sur l'onglet Architecture
le groupe de fonctions Toit
(Toit par tracé).
- Dans le groupe de fonctions Dessiner, cliquez sur
(Choisir des murs).
- Dans la barre des options, définissez le débord sur 0, puis désactivez l'option Définit l'inclinaison.
- Dans la palette Propriétés, définissez le décalage inférieur à partir du niveau sur -750.
- Dans la zone de dessin, effectuez les opérations suivantes :
- Mettez en surbrillance un mur extérieur.
- Appuyez sur la touche Tabulation pour sélectionner la chaîne de murs.
- Cliquez pour placer les lignes de toit.
- Dans le groupe de fonctions Mode, cliquez sur
(Terminer).
Partie 6 : Positionnement de portes