Au cours de l'exercice, vous allez créer une vue en coupe, une vue de détail du mur extérieur et un repère de détail du parapet.
|
Catégorie
|
Nouveaux utilisateurs
|
|
Temps nécessaire
|
10 minutes
|
|
Fichiers didacticiels utilisés
|
GSG_10_views.rvt
|
|
Avant de commencer, téléchargez le fichier GSG_10_views.rvt. Téléchargez ce fichier ZIP (si vous n’avez pas encore téléchargé les fichiers d’exercice pour les didacticiels).
Objectifs
- Utiliser l'outil Coupe pour créer une vue en coupe d'un bâtiment.
- Utiliser des commandes pour modifier la surface incluse dans la coupe et modifier l'affichage de l'extrémité de ligne de coupe.
- Utiliser l'outil Repère de vue pour créer une vue en coupe de mur.
- Utiliser l'outil Repère de vue pour créer une vue de détail de la coupe du mur.
Visionner la vidéo
Création d'une vue en coupe
- Ouvrez le projet GSG_10_views.rvt.
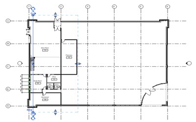
- Dans l'arborescence du projet, sous Plans d'étage, double-cliquez sur 01 - Store Floor.
- Cliquez sur l'onglet Vue
le groupe de fonctions Créer
(Coupe).
- Cliquez en dehors du mur sud du bâtiment à proximité du quadrillage 1, déplacez le pointeur vers le haut jusqu'à ce qu'il se trouve à l'extérieur du bâtiment, côté nord, puis cliquez pour placer approximativement une ligne de coupe passant par le centre de l'escalier, comme indiqué.
- Cliquez sur la commande d'inversion (
) pour inverser la coupe de sorte qu'elle comprenne le magasin n° 103.
- Cliquez deux fois sur la commande de navigation (
) dans la partie supérieure afin de parcourir les options de marque de ligne de coupe et d'afficher l'extrémité de la ligne de coupe en haut et en bas.
- Appuyez sur Echap.
- Cliquez deux fois sur l'extrémité de la ligne de coupe pour afficher la vue en coupe.
- Dans la barre de contrôle Vue, cliquez sur
(Masquer la zone cadrée).
Création de vues de détail
- Cliquez sur l'onglet Vue
le groupe de fonctions Créer
(Repère).
- Dans le sélecteur de type, sous Coupe, cliquez sur Coupe de mur.
- Afin de dessiner un repère autour de l'ensemble du mur nord (à gauche dans la vue en coupe) du bâtiment, des fondations au toit, cliquez pour définir le coin inférieur gauche et cliquez de nouveau pour définir le coin supérieur droit de la zone.
- Sélectionnez le repère et, à l'aide de la commande Faire glisser la pointe, faites glisser le marqueur de détail pour qu'il s'affiche dans la partie supérieure gauche du repère.
- Appuyez sur Echap.
- Cliquez deux fois sur le marqueur de détail pour ouvrir la vue de détail.
- Dans la barre de contrôle Vue, cliquez sur
(Masquer la zone cadrée).
- Dans la barre de contrôle Vue, changez le niveau de détail et définissez-le sur Moyen.
- Dans le panneau Créer, cliquez sur
(Repère).
- Dans le sélecteur de type, sous Vue de détail, sélectionnez Détail.
- Tracez un repère autour du parapet mural.
- Repositionnez le marqueur de détail vers le haut et la gauche.
- Cliquez deux fois sur le marqueur de détail pour ouvrir la vue de détail.
- Dans la barre de contrôle Vue, cliquez sur
(Masquer la zone cadrée).
Partie 11 : Ajout de cotes