Dans cet exercice, vous allez ajouter des cotes au modèle de bâtiment afin de coter le tracé du bâtiment principal. 
  
|  
				  Catégorie 
				 | 
 Nouveaux utilisateurs 
				 | 
 
|  
				  Temps nécessaire 
				 | 
15 minutes 
				 | 
 
|  
				  Fichiers didacticiels utilisés 
				 | 
 GSG_11_dimensions.rvt 
				 | 
 
 
 | 
Avant de commencer, téléchargez le fichier GSG_11_dimensions.rvt. Téléchargez ce fichier ZIP (si vous n’avez pas encore téléchargé les fichiers d’exercice pour les didacticiels). 
	 
 
		Objectifs 
	 
- Coter la largeur du bâtiment. 
		
 
- Utilisez l'option de quadrillages intersectés avec une cote alignée afin d'inclure automatiquement les intersections de quadrillage lors de la cotation des murs extérieurs. 
		
 
- Utiliser l'option Ouvertures avec une cote alignée pour inclure automatiquement des ouvertures de fenêtre lors de la cotation du mur extérieur. 
		
 
 Visionner la vidéo 
	 
Ajout de cotes
 
		 
		- Ouvrez un projet GSG_11_dimensions.rvt. 
		  
 
- Vérifiez que le plan d'étage 01 - Store Floor est ouvert. 
		  
 
- Cliquez sur l'onglet Annoter
le groupe de fonctions Cote
 (Alignée). 
		   
- Dans la barre des options, sélectionnez Faces du mur et, pour Choisir, sélectionnez Références individuelles. 
		  
 
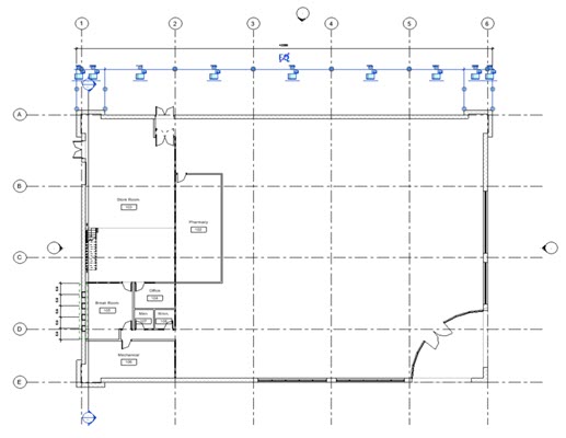
- Cotez la largeur du bâtiment : 
			 
- Cliquez sur la face extérieure du mur ouest. 
				
 
- Cliquez sur la face extérieure du mur est. 
				
 
- Placez le curseur au-dessus du bâtiment, puis cliquez pour placer la cote. 
				
 
 
			 
 
		   
 
	  
Quadrillages de cote
 
		 
		- Dans la barre des options : 
			 
- Cliquez sur l'onglet Annoter
le groupe de fonctions Cote
 (Alignée). 
				 
- Sélectionnez Murs entiers pour l'option Choisir. 
				
 
- Cliquez sur Options. 
				
 
- Dans la boîte de dialogue Options des cotes automatiques, choisissez Quadrillages intersectés et cliquez sur OK. 
				
 
 
		   
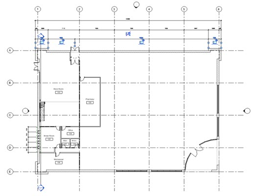
- Cotez les ouvertures de fenêtres et les intersections pour le mur sud : 
			 
- Cliquez sur le mur extérieur nord encastré. 
				
 
- Cliquez sur les murs est et ouest. 
				
 
- Placez le curseur au-dessus du bâtiment, puis cliquez pour placer la cote. 
				
 
 
			 
 
		   
- Cliquez sur Modifier. 
		  
 
 
	  
Dimensionner les cotes
 
		 
		- Dans la barre des options : 
			 
- Cliquez sur l'onglet Annoter
le groupe de fonctions Cote
 (Alignée). 
				 
- Sélectionnez Murs entiers pour l'option Choisir. 
				
 
- Cliquez sur Options. 
				
 
- Dans la boîte de dialogue Options des cotes automatiques, sélectionnez Ouvertures et cliquez sur OK. 
				
 
 
		   
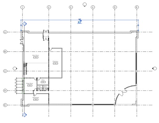
- Cotez les ouvertures de fenêtres et les intersections pour le mur sud : 
			 
- Cliquez sur le mur extérieur nord encastré. 
				
 
- Cliquez sur les murs est et ouest. 
				
 
- Placez le curseur au-dessus du bâtiment, puis cliquez pour placer la cote. 
				
 
 
			 
 
		   
- Cliquez sur Modifier. 
		  
 
 
	  
 
		 
		  Partie 12 : Ajout de notes