Au cours de l'exercice, vous allez finaliser l'intérieur du modèle en ajoutant un escalier à la mezzanine au niveau inférieur, puis en modifiant le garde-corps de la mezzanine. 
  
|  
				  Catégorie 
				 | 
 Nouveaux utilisateurs 
				 | 
 
|  
				  Temps nécessaire 
				 | 
15 minutes 
				 | 
 
|  
				  Fichiers didacticiels utilisés 
				 | 
GSG_09_stairs_railings.rvt 
				 | 
 
 
 | 
Avant de commencer, téléchargez le fichier GSG_09_stairs_railings.rvt. Téléchargez ce fichier ZIP (si vous n’avez pas encore téléchargé les fichiers d’exercice pour les didacticiels). 
	 
 
		Objectifs 
	 
- Créer un escalier entre le magasin et la mezzanine. 
		
 
- Modifier le garde-corps de l'escalier pour inclure la mezzanine. 
		
 
- Modifier le type de garde-corps en garde-corps tubulaire. 
		
 
 Visionner la vidéo 
	 
Création d'escaliers
 
		 
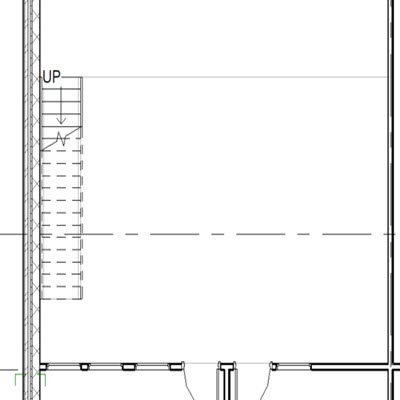
		- Ouvrez le projet GSG_09_stairs_railings.rvt. 
		  
 
- Vérifiez que le plan d'étage 01 - Store Floor est ouvert. 
		  
 
- Cliquez sur l'onglet Architecture
le groupe de fonctions Circulation
 (Escalier). 
		   
- Dans la palette Propriétés, sous Contraintes : 
			 
- Pour Base Level, sélectionnez 01 - Store Floor. 
				
 
- Pour Top Level, sélectionnez Mezzanine. 
				
 
- Dans la barre des options, définissez la ligne d'emplacement sur Volée: gauche. 
				
 
 
		   
- Dans la pièce de stockage, cliquez sur le coin du niveau en fond de plan de la mezzanine pour démarrer la volée d'escalier. 
		  
 
- Déplacez le pointeur vers le bas jusqu'à ce que l'info-bulle indique qu'il ne reste plus aucune contremarche, puis cliquez afin d'indiquer le point d'arrivée de l'escalier. 
		  
 
- Dans le groupe de fonctions Mode, cliquez sur 
 (Terminer le mode de modification). 
			 
 
		   
 
	  
Modification du type de garde-corps
 
		 
		- Dans la barre d'outils d'accès rapide, cliquez sur 
 (Vue 3D par défaut). 
		   
- Sélectionnez le toit plat, utilisez 
 (Masquer/Isoler temporairement) dans la barre de contrôle Vue, puis choisissez Masquer l'élément. 
		   
- Sélectionnez le garde-corps sur le côté de l'escalier situé près du mur. 
			 
 
		  
 
- Dans le sélecteur de type, sélectionnez 900 mm Pipe Wall. 
		  
 
- Cliquez sur Supprimer le type dans la boîte de dialogue d'avertissement. 
		  
 
- Sélectionnez le garde-corps de l'autre côté de l'escalier. 
		  
 
- Dans le sélecteur de type, sélectionnez 900 mm Pipe. 
			 
 
		  
 
 
	  
 
		 
		  Partie 10 : Création de vues