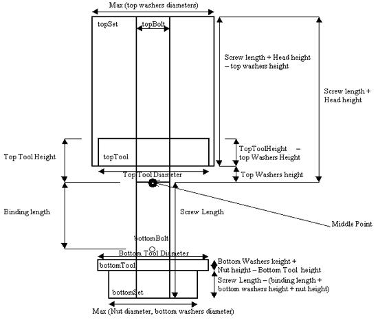
For the collision check the body is calculated in the following way:
The body consists of 6 bodies:
In case a collision between a bolt and any other object is found, try to revert the bolt direction and check again. It is possible that the bolt no longer interferes with the object.
Calculated Body of the bolt is used for intersection with every body of the object from the model. If it is intersected with another body, it calculates the intersection body.
The dimensions (height, diameter) of the washers and nuts are in AstorBase - SetNutsBolts, and for Tool are in AstorBase - Tools. These dimensions depend on the definition of the bolts (AstorBase - SetOfBolts).