Come escludere un materiale dal contorno continuo di una sezione 2D

Per escludere i componenti degli oggetti ai quali è assegnato un materiale specifico dal contorno continuo di una sezione 2D, attenersi alla procedura descritta di seguito.

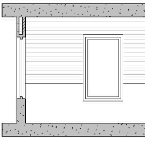
Quando si crea una sezione 2D è possibile visualizzare un componente di sezione denominato Contorno continuo. Il contorno continuo è l'unione di tutte le facce dell'oggetto tagliate dalla linea di sezione, fuse in un solo componente con un modello di tratteggio. Questa è una vista di sezione 2D usata di frequente.

Per default, tutti i componenti ai quali sono assegnati materiali vengono inclusi nel contorno continuo. È tuttavia possibile impostare l'esclusione dal contorno continuo di determinati materiali, ad esempio il vetro.

Contorno continuo di sezione 2D con vetro escluso (sinistra)

  1. Selezionare un componente con il gruppo di definizioni di stile in cui sia presente lo stile da modificare, quindi procedere nel modo seguente:
    • Fare clic su scheda Canale aria gruppo Generale menu a discesa Modifica stile sistema Modifica stile canale aria .
    • Fare clic su scheda Tubo gruppo Generale menu a discesa Modifica stile sistema Modifica stile tubo .
    • Fare clic su scheda Passerella gruppo Generale menu a discesa Modifica stile sistema Modifica stile sistema .
    • Fare clic su scheda Raccordo passerella gruppo Generale menu a discesa Modifica stile sistema Modifica stile sistema .
    • scheda Tubogruppo Generalemenu a discesa Modifica stile sistemaModifica stile sistema.
  2. Nel riquadro sinistro di Gestione stili, selezionare lo stile di sistema assegnato al materiale che si desidera escludere dalla sezione contorno continuo.
  3. Fare clic sulla scheda Altro.
  4. Selezionare Escludi dal contorno continuo della sezione 2D.
  5. Fare clic su OK.